陈智超设计|精装房变身童话乐园!三娃家庭的治愈系改造
本帖最后由 陈智超 于 2025-5-28 21:33 编辑

短版CZCLOGO.jpg
封面.gif
“乐园”主题 / Theme "Playland"
这是为广州花都的三娃家庭量身定制的家,不仅要满足收纳、学习、生活的多重需求,更要成为孩子们自由探索的童话世界。
A home designed for a family of five in Huadu, Guangzhou, where functionality meets fantasy. More than storage and study spaces—this is a wonderland for children to explore.
改造前现场照片 / Before Renovation Photos
/ Pre-Renovation Analysis
核心诉求 / Core Requirements:
2.明亮通透:无死角照明,拒绝昏暗角落
Light-Flooded Spaces: Zero shadow zones, even in the tightest corners.
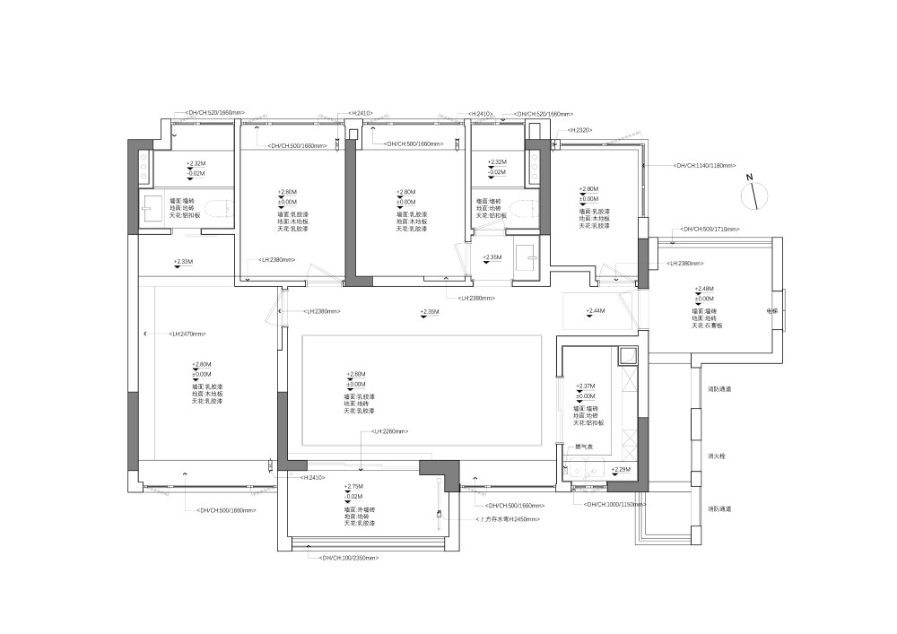
原始建筑图 / Original Floor Plan
原始痛点 / Existing Issues:
An entrance as cramped as a maze, worsened by partitions.
3.客厅聚餐=人贴人“行为艺术”
Living room gatherings turned into performance art of crowdedness.
5.需容纳5张床位(3名儿童+屋主+临时客房)
Five beds required (three children, parents, and a guest room)
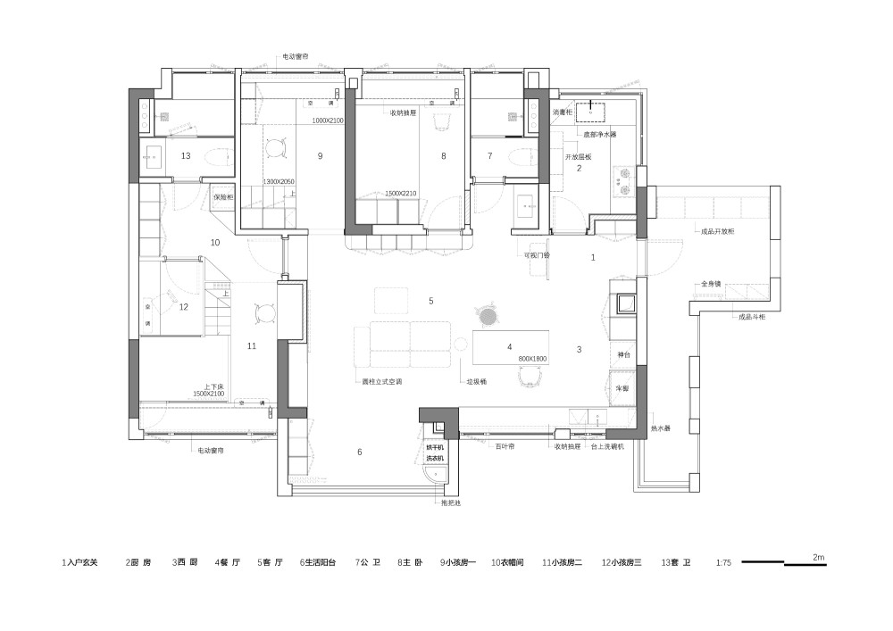
平面图.jpg

平面改造策略 / Renovation Strategy
1.厨房移位 / Kitchen Relocation: 将原厨房迁至鸡肋书房区域
Original kitchen moved to an underutilized study area
3.阳台扩容 / Balcony Integration: 拆除推拉门+封窗设计,将阳台纳入公共空间
Sliding doors removed and windows sealed to integrate the balcony into the communal space
5.空间魔法 / Spatial Innovation: 中间卧室采用错位上下床,兼顾睡眠与学习功能
Middle bedroom redesigned with staggered bunk beds for sleep and study
轴侧图.jpg
效果图 / Renderings
玄关 / Entrance
1.1.jpg
1.2.jpg
动态屏风:水波纹玻璃+绿植,每天进门都是新画作
Living Art: Water-ripple glass + vertical garden = ever-changing entrance art.
厨房 / Kitchen
2.jpg
层板美术馆:杂粮罐变身装饰品,收纳也可以是艺术
Pantry as Gallery: Grain jars displayed like curated artifacts.
整面通顶柜+延展操作台,完美承担烘焙器材收纳
Floor-to-ceiling cabinets and extended countertops for baking equipment storage
餐厅 / Dining Area
4.jpg
四周预留宽裕洄游动线,孩童奔跑嬉戏畅通无阻
Generous circulation space allows children to play freely
6.jpg
客餐厨一体化布局,家长随时照看各区域孩子动态
Open-plan layout enables parental supervision across zones
8.jpg
9.jpg
沙发变形记:模块组合自由拼,聚餐模式→影院模式→遛娃赛道
Shape-Shifting Sofa: Modular pieces adapt for dining, movies, or playtime races.
11.JPG
12.jpg
主卧 / Parents' Bedroom
14.1.jpg
14.2.jpg
窗台整体抬高延伸出超长书桌,与香水柜组成L型多功能区
Raised windowsill extended into a desk, forming an L-shaped zone with a perfume cabinet
16.jpg
男孩房 / Boys' Room
19.jpg
窗边定制衣柜连体床铺,亲友留宿时秒变临时客房
Custom closet-bed combo by the window serves as a guest bed
女儿房 / Girls' Rooms
女儿房平面.jpg
20.jpg
S型共墙设计:精准分配两房书桌空间,墙面互借尺寸
S-shaped shared wall optimizes desk space for both rooms
22.jpg
密道社交:飘窗连通姐妹房,夜话会无需“翻山越岭”
Sisterhood Highway: Window-seat tunnels link rooms for midnight giggles.
25.jpg

基础信息 / Project Details
陈智超设计工作室:打造梦想之家,始于2025,深耕广州8年
CHEN Zhichao Design Studio: Creating Dream Homes Since 2025, with 8 Years of Dedication in Guangzhou
金堂奖「2025年卓越设计青年」
Golden Hall Award: Outstanding Young Designer of 2025
设计星(2024-2025)全国36强候选人
*Design Star (2024-2025): National Top 36 Finalist*
40 UNDER 40 (城市)当代设计杰出青年(2023-2024)城市榜
*40 UNDER 40 (City): Outstanding Young Designer 2023-2024 (City List)*
原创力中国设计大赛(2024-2025年度入围奖)
*Originality China Design Competition: Finalist 2024-2025*
CIFF设交圈·「设计千人计划2024-2025」
*CIFF Design Circle: "Design 1000 Talents Program 2024-2025"*
2024 "House Award": Top 100 in China Contemporary Residential Design
2023
“让设计回归自然·2023年度高端私宅设计影响力榜单TOP50强”
"Design Returns to Nature" 2023: Top 50 Influential Luxury Residential Designs
“寻找心之所居 - 2023中国室内设计年度评选”年度十佳私宅空间设计奖TOP10
2023 "Seeking Soulful Spaces": Top 10 Private Residence Design Awards
第十一届Hi-Design室内设计大赛-老房翻新奖
*11th Hi-Design Competition: Renovation Award*
40 UNDER 40(城市)当代设计杰出青年(2023-2024)城市榜
*40 UNDER 40 (City): Outstanding Young Designer 2023-2024 (City List)*
年度先锋榜·DESIGNCHINA 2023年度(广州)十大先锋
2023 DESIGNCHINA Pioneer List: Top 10 Pioneers (Guangzhou)
2023玩色主义空间设计大赛-玩色主义创意奖
2023 Chromaticism Space Design Competition: Creative Color Award
第十五届“CBDA照明应用设计大赛”三等奖
15th CBDA Lighting Design Competition: Third Prize
“一兜糖”最有温暖私宅设计TOP500
Yidoutang: Top 500 Coziest Residential Designs
红棉设计奖·2022优秀艺术空间设计奖
2022 Red Cotton Design Award: Outstanding Art Space Design
华艺杯“空间造型组TOP140”
Huayi Cup: Top 140 in Spatial Form Design

陈智超设计|精装房变身童话乐园!三娃家庭的治愈系改造_3.jpg
陈智超设计|精装房变身童话乐园!三娃家庭的治愈系改造_5.jpg
陈智超设计|精装房变身童话乐园!三娃家庭的治愈系改造_7.jpg
陈智超设计|精装房变身童话乐园!三娃家庭的治愈系改造_13.jpg
陈智超设计|精装房变身童话乐园!三娃家庭的治愈系改造_17.JPG
陈智超设计|精装房变身童话乐园!三娃家庭的治愈系改造_18.jpg
陈智超设计|精装房变身童话乐园!三娃家庭的治愈系改造_21.jpg
陈智超设计|精装房变身童话乐园!三娃家庭的治愈系改造_23.jpg
陈智超设计|精装房变身童话乐园!三娃家庭的治愈系改造_24.jpg
陈智超设计|精装房变身童话乐园!三娃家庭的治愈系改造_26.jpg
陈智超设计|精装房变身童话乐园!三娃家庭的治愈系改造_改造前.jpg
陈智超设计|精装房变身童话乐园!三娃家庭的治愈系改造_下载.jpg
陈智超设计|精装房变身童话乐园!三娃家庭的治愈系改造_原始建筑图.jpg
陈智超设计|精装房变身童话乐园!三娃家庭的治愈系改造_10.gif
陈智超设计|精装房变身童话乐园!三娃家庭的治愈系改造_15.png
陈智超设计|精装房变身童话乐园!三娃家庭的治愈系改造_10.png
AI文本分析中……
AI色彩命名中……

序赞Ai时刻等待着你的命令!~

与Ai对话形式持续执行相关Ai智能体任务。

您需要登录后才可以回帖 登录 | 注册序赞号

快速回复 返回顶部 返回列表