
- 平面规划
- >
- 住宅
- >
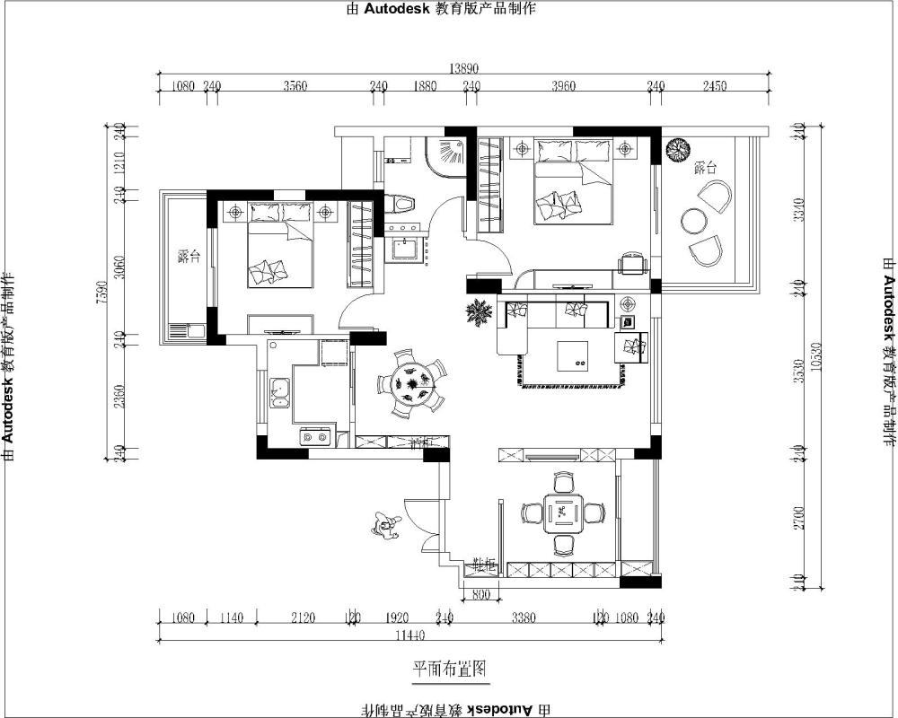
- 大家帮忙看看这个户型我这样布置合理吗
- 2011-08-07
- 9439
- 0
- 0
AI文本分析中……
AI色彩命名中……
序赞Ai时刻等待着你的命令!~
与Ai对话形式持续执行相关Ai智能体任务。
股一股2011-8-10 20:11:59
| ||
aguang32732011-8-10 20:46:56
| ||
longfei2011-8-10 22:07:34
| ||
股一股2011-8-11 10:05:54
| ||
股一股2011-8-11 10:08:06
| ||
股一股2011-8-11 10:14:29
| ||
股一股2011-8-11 14:02:17
| ||
一般像你这样的户型,老人住的话,都会考虑实用为主,你要在做出空间感的同时,又能体现它的实用主义。在不牺牲空间的同时,而又接近达到牺牲空间的效果!



