
- 平面规划
- >
- 住宅
- >
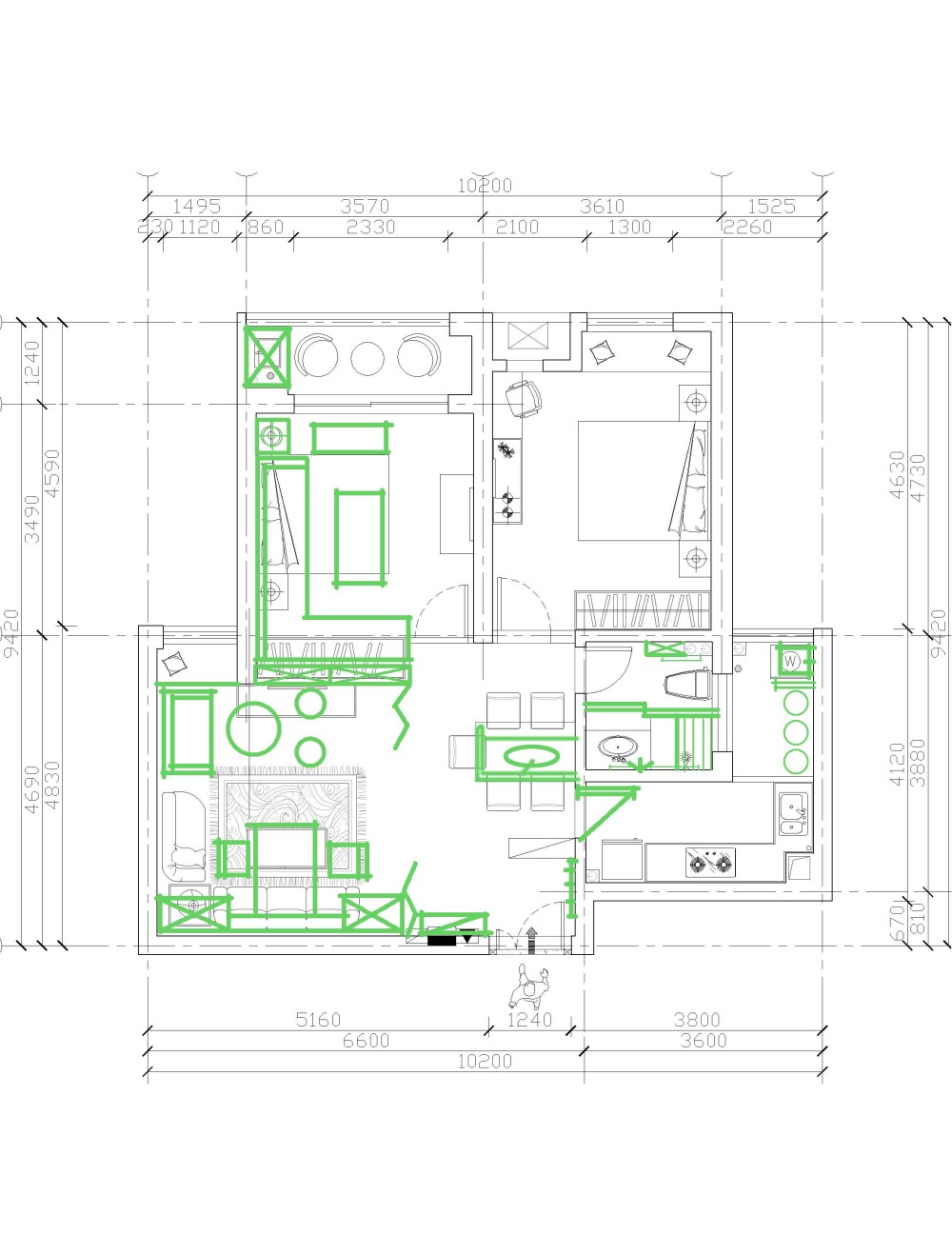
- 求大师帮忙看下小户型是否合理
- 2011-08-25
- 7068
- 0
- 1
AI文本分析中……
AI色彩命名中……
序赞Ai时刻等待着你的命令!~
与Ai对话形式持续执行相关Ai智能体任务。
彭勤超2011-8-27 17:23:42
| |
sables2011-8-27 17:48:22
| ||
2519丰2011-8-27 17:52:51
| |
花草落落2011-8-27 21:49:16
| |
面瘫长颈鹿2011-8-27 23:05:16
| ||
tweetycheung2011-8-28 10:29:46
| ||
落叶已在2011-8-28 17:12:50
| ||
budaidai2011-8-28 17:43:16
| ||
花草落落2011-8-29 09:42:27
| |
浏览过的版块 |




