
- 平面规划
- >
- 住宅
- >
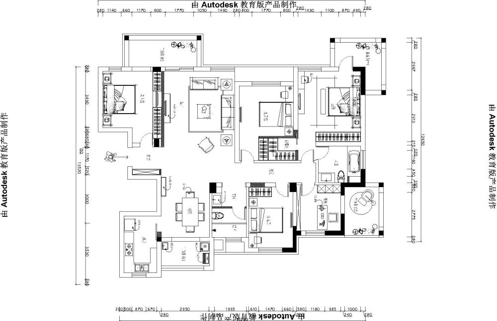
- 200平方平层套房,求赐教。
- 2012-06-17
- 15762
- 2
- 1
AI文本分析中……
AI色彩命名中……
序赞Ai时刻等待着你的命令!~
与Ai对话形式持续执行相关Ai智能体任务。
夏MM2012-6-18 21:17:03
| |
夏MM2012-6-18 21:17:12
| |
傅明亮2012-6-18 22:09:06
| ||
hrnevin2012-6-18 22:29:27
| |
road33442012-6-18 22:47:16
| |
hrnevin2012-6-18 22:49:42
| ||
road33442012-6-18 23:04:20
| ||
road33442012-6-18 23:05:48
| ||
hrnevin2012-6-18 23:15:53
| |
82499652012-6-19 00:19:10
| ||





