
- 平面规划
- >
- 住宅
- >
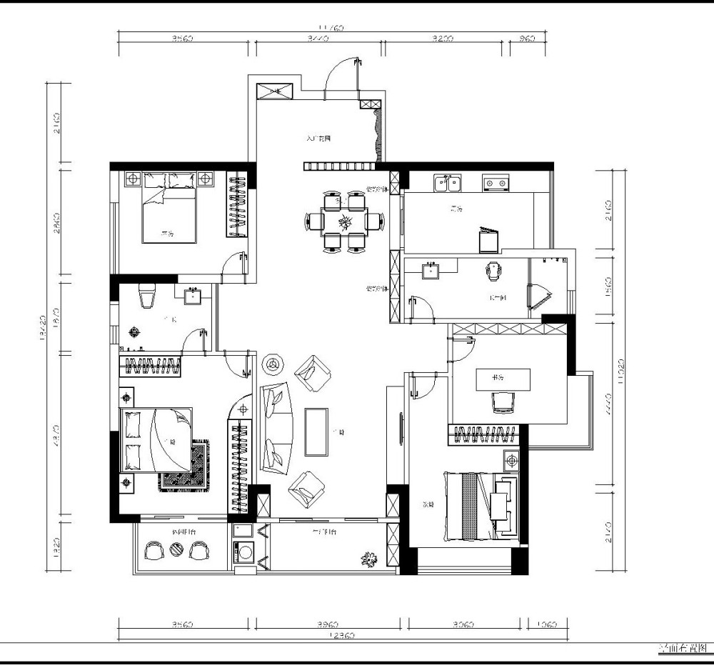
- 刚到手的平面图 我们一起来讨论吧
- 2012-07-27
- 8395
- 2
- 0
AI文本分析中……
AI色彩命名中……
序赞Ai时刻等待着你的命令!~
与Ai对话形式持续执行相关Ai智能体任务。
sjpeee2012-8-3 11:49:43
| ||
麦麦992012-8-4 13:51:28
| |
麦麦992012-8-4 13:52:35
| |
麦麦992012-8-4 14:09:15
| |
麦麦992012-8-4 14:10:26
| |
麦麦992012-8-13 11:06:47
| ||
cablr2012-8-13 12:08:12
| ||
q9241600172012-8-13 16:33:00
| ||
deng158843192012-8-16 00:16:38
| |





