Ai 分析中……

暂无用户创作记录!~

记录用户以此项目图片为灵感使用Ai进行二次创作。

sunita2012-8-1 18:48:54
szlin_sz 发表于 2012-8-1 14:41
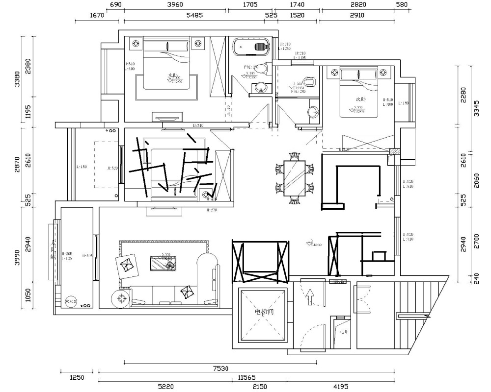
2個方案中,第二個方案會好些。第一個方案中,走進次衛的路線不是太好,要穿過繞道了。第二個方案中 ...

{:2:}谢谢提醒啦,要再多想想啦
cz4377802422012-8-2 09:27:10
其实只要功能达到要求了 、空一点没事、这叫留白、就像国画一样、一张很大的白纸、只是中间画了几只小虾 剩下的地方全是白的、在国画里这就是留白、、、、
qq71673032012-8-2 09:54:58
天啊。。。。。。。。。
00.dwg
282.09 KB,下载次数:23
qq71673032012-8-2 09:56:38
刚才那个传错了。SORRY!!
qq71673032012-8-2 09:57:36
这个是的!!!!!!
初学者,总觉得餐厅那太空了,大家帮忙看看啦,_0.0.jpg
背对青春2012-8-2 20:33:19
sunita 发表于 2012-8-1 12:02
就是觉得很苦恼啊,也不知道怎么摆的好看,想在客厅与餐厅之间加个吧台,但是还是空空的,也没能很好的改 ...

个人意见,平面布置上餐厅和客厅之间通过格局的布置使两者关联性更强,做到更在同意协调,从而不那么空旷。建议两者之间做两个对称的端景台或造型过道等,后期立面上做色彩和造型上的搭配同意。你已经布置很好啦··加油~~~{:1:}
12
您需要登录后才可以回帖 登录 | 注册序赞号

快速回复 返回顶部 返回列表