AI文本分析中……
AI色彩命名中……

序赞Ai时刻等待着你的命令!~

与Ai对话形式持续执行相关Ai智能体任务。

树摇風2013-8-28 11:53:53
终于可以回复了,来学习一下
它它19892013-8-28 12:05:58
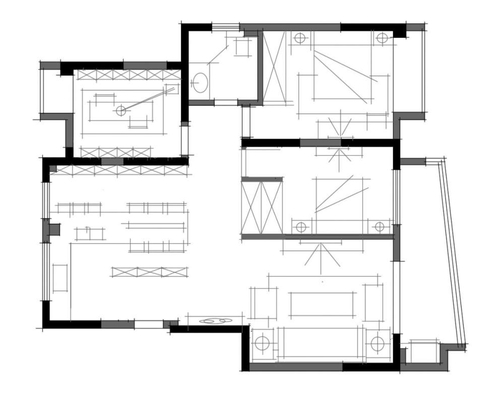
做了先发上来~~
【求P】120平户型优化 参与都有DB奖励~~_QQ截图20130828120534.jpg

评分

参与人数 2赞币 +60 收起 理由
林小木 + 40 认真评贴
設計是空 + 20 认真评贴

查看全部评分

太空滑步2013-8-28 12:12:02
它它1989 发表于 2013-8-28 12:05
做了先发上来~~

有点意思,不过过道太浪费了~~~
wannid2013-8-28 14:28:31
如果此户型不是用来做样板房的话,从实用的角度来看,原方案一比其它的优秀。餐厅与客厅的空间视角效果大、通透,没折角。它的“纯通道”的面积也较少,厨房的“长宽比”也较好用。
xiaoyuanzi2013-8-28 16:13:44
原方案二要好点。通透!
tendy_c2013-8-28 16:20:29
看看吧    就怕你接受不了
【求P】120平户型优化 参与都有DB奖励~~_20.jpg

评分

参与人数 1赞币 +20 收起 理由
設計是空 + 20 认真评贴

查看全部评分

hellsp2013-8-28 16:54:35
002738xl4744we36e6qi34副本.jpg

在方案二的基础上小改了一下,比较勉强。

评分

参与人数 1赞币 +20 收起 理由
設計是空 + 20 认真评贴

查看全部评分

林小木2013-8-28 17:08:42
hellsp 发表于 2013-8-28 16:54
在方案二的基础上小改了一下,比较勉强。

这个厨房好长~~~~~~~~~~~~~~~~~~~~~~~~~~~~~~~~~~~~~~~~~~~~~~~~~~~~~~~~~~~
hellsp2013-8-28 17:11:38
本帖最后由 hellsp 于 2013-8-28 17:21 编辑
林小木 发表于 2013-8-28 17:08
这个厨房好长~~~~~~~~~~~~~~~~~~~~~~~~~~~~~~~~~~~~~~~~~~~~~~~~~~~~~~~~~~~

呵呵,在烟道位置往上一点可以一分为二。关键是交通梳理了一下,虽然不甚理想。
厨房上面的小房间可以考虑做暗门……
002738xl4744we36e6qi34副本副本.jpg
zhuoying2013-8-28 17:24:42
未命名.jpg

评分

参与人数 1赞币 +20 收起 理由
林小木 + 20 认真评贴

查看全部评分

下一页
您需要登录后才可以回帖 登录 | 注册序赞号

快速回复 返回顶部 返回列表