AI文本分析中……
AI色彩命名中……

序赞Ai时刻等待着你的命令!~

与Ai对话形式持续执行相关Ai智能体任务。

s0306542014-4-17 10:25:34
静马蹄 发表于 2014-4-16 09:47
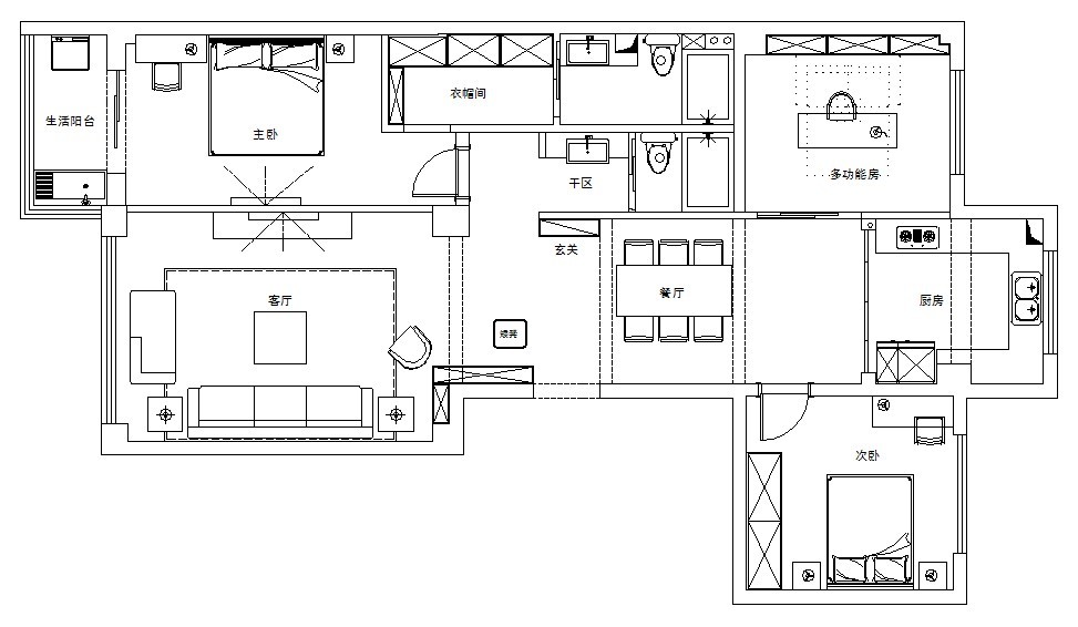
就是主人去卫生间路途有点远哈~!

主卧有个卫生间
zhang65162762014-4-21 15:04:36
如果不好别喷有缺陷就指点都是学习学习
请教一合理的方案    学习了 ~ 学习了_QQ图片20140421150354.jpg
12
您需要登录后才可以回帖 登录 | 注册序赞号

快速回复 返回顶部 返回列表