
- 平面规划
- >
- 住宅
- >
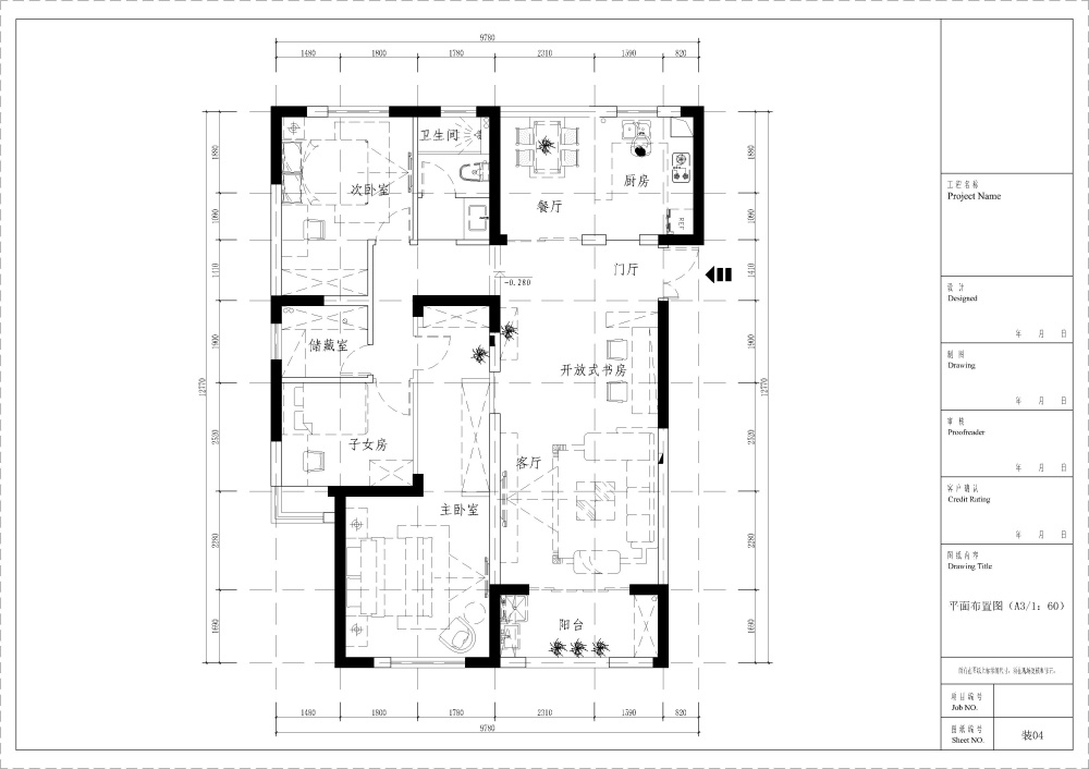
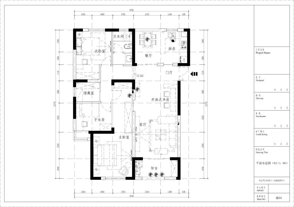
- 三口之家,平面求指正!!!
- 2014-09-11
- 6643
- 1
- 1
AI文本分析中……
AI色彩命名中……
序赞Ai时刻等待着你的命令!~
与Ai对话形式持续执行相关Ai智能体任务。
°凌晨三点半2014-9-16 16:28:56
| ||
做装修图纸2014-9-16 21:26:43
| ||
kevinfaith2014-9-17 00:38:35
| ||
皓love月2014-9-17 15:36:04
| ||
皓love月2014-9-17 15:45:38
| ||
皓love月2014-9-17 15:48:23
| ||
做装修图纸2014-9-19 10:35:00
| ||
做装修图纸2014-9-19 11:01:14
| ||
做装修图纸2014-9-19 11:11:19
| ||
做装修图纸2014-9-19 19:36:07
| ||



