
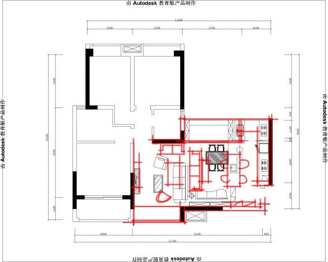
- 平面规划
- >
- 住宅
- >
- 100平米婚房待解救。
- 2015-06-02
- 4633
- 0
- 3
AI文本分析中……
AI色彩命名中……
序赞Ai时刻等待着你的命令!~
与Ai对话形式持续执行相关Ai智能体任务。
熟食菌2015-6-3 14:54:21
| ||
浑浊了视线的眼2015-6-4 09:25:59
| ||
4211978192015-6-4 11:40:06
| ||
Tttoo992015-6-9 14:07:11
| ||
Tttoo992015-6-10 09:32:24
| ||
张美2015-6-12 21:20:52
| ||
罗毅2015-6-23 14:23:46
| ||
用户名阿森纳的2015-6-30 17:54:47
| ||



