
- 平面规划
- >
- 住宅
- >
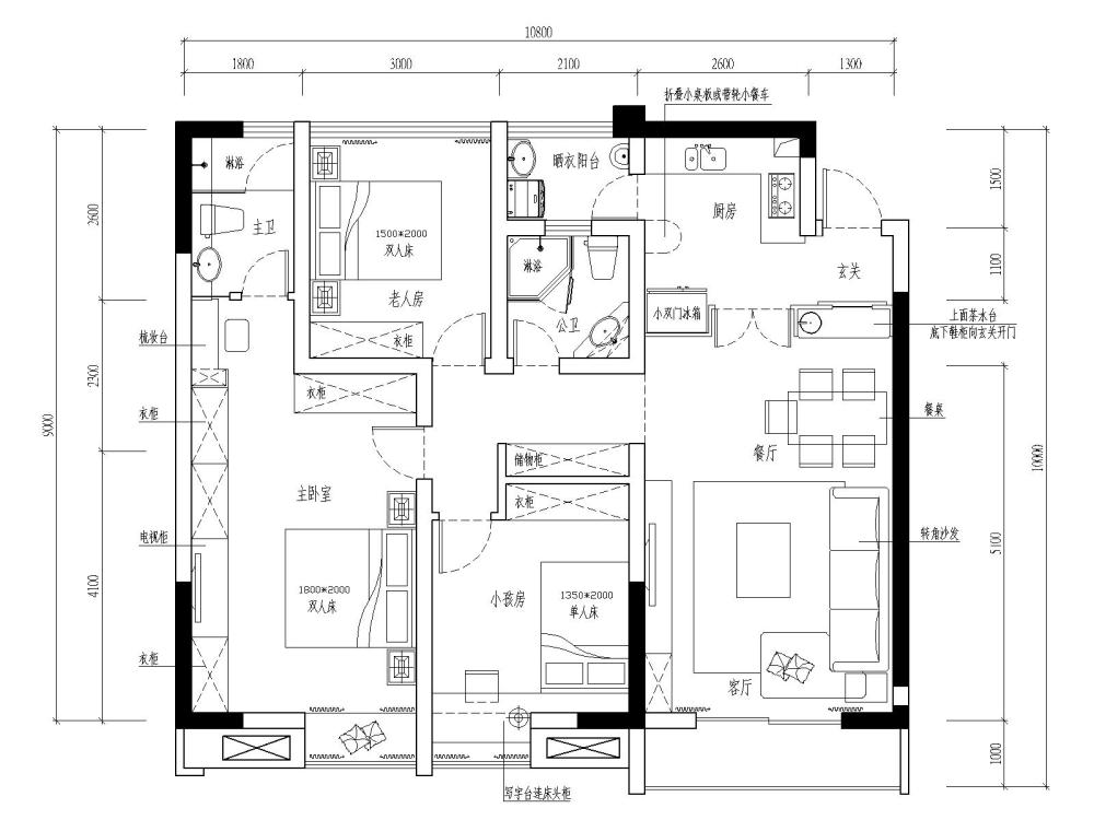
- 餐厅,厨房不舒服,看有没的新的改法
- 2015-11-02
- 5100
- 2
- 5
AI文本分析中……
AI色彩命名中……
序赞Ai时刻等待着你的命令!~
与Ai对话形式持续执行相关Ai智能体任务。
sandra绿草如茵2015-11-12 14:53:11
| ||
leofeng7132015-11-14 09:09:27
| ||
狗尾草2015-11-14 09:40:39
| |
sandra绿草如茵2015-11-16 13:15:33
评分
| ||||||||
只对你有感觉602015-11-16 16:39:36
| ||
12
浏览过的版块 |



