
- 2016-05-19
- 7892
- 1
- 7
AI文本分析中……
AI色彩命名中……
序赞Ai时刻等待着你的命令!~
与Ai对话形式持续执行相关Ai智能体任务。
強籽/~↘2016-5-20 19:07:54
| |
強籽/~↘2016-5-20 19:09:09
| |
強籽/~↘2016-5-20 19:10:59
| |
強籽/~↘2016-5-21 09:08:31
| ||
強籽/~↘2016-5-21 09:13:38
| ||
liu-cap2016-5-21 13:17:39
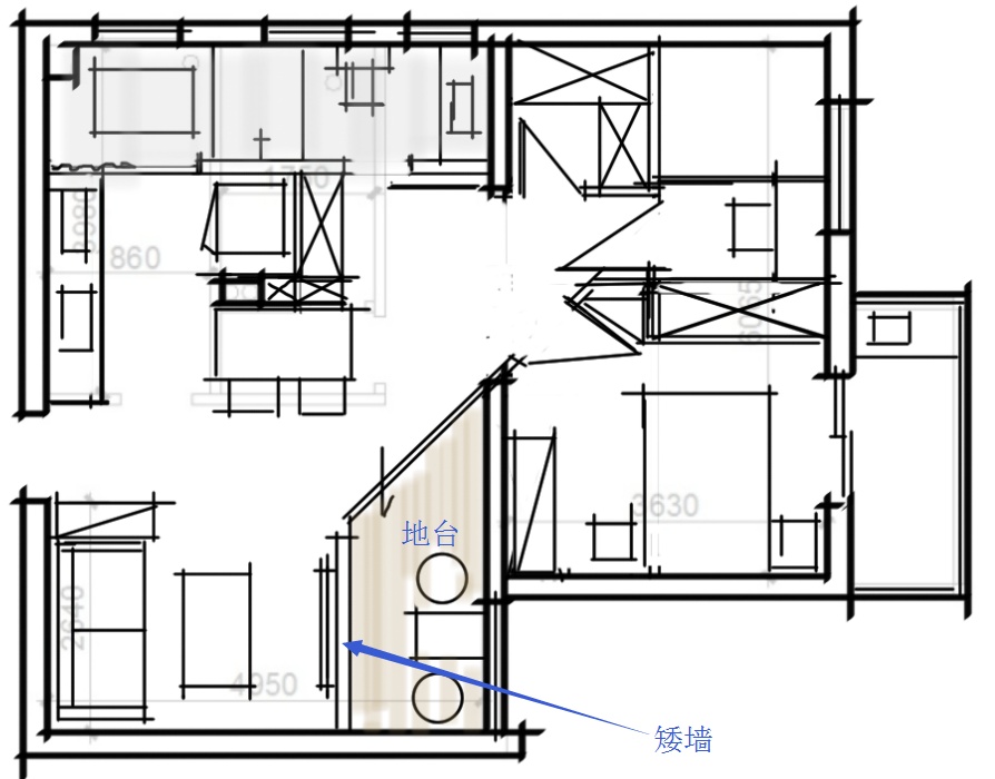
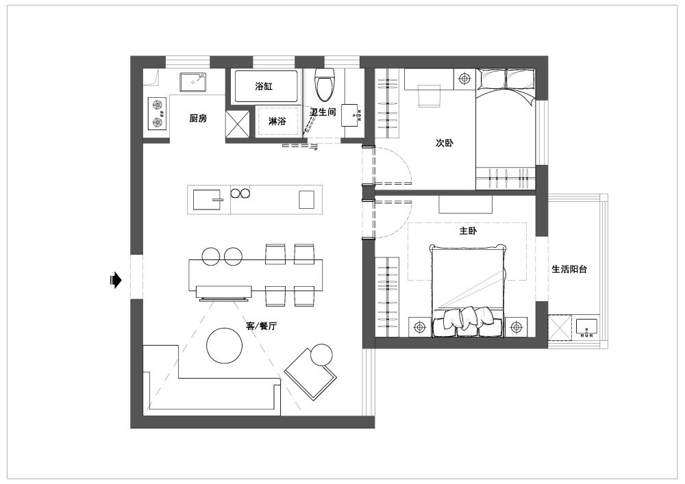
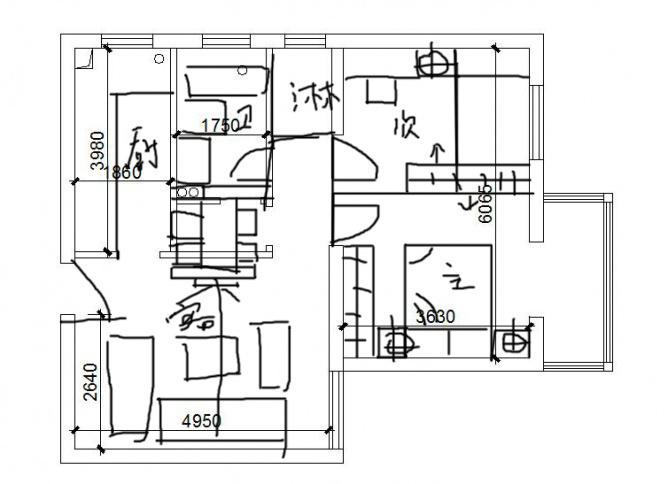
RE: 80平米小户型 ,求平面方案 采纳后送1000DB
| ||



