
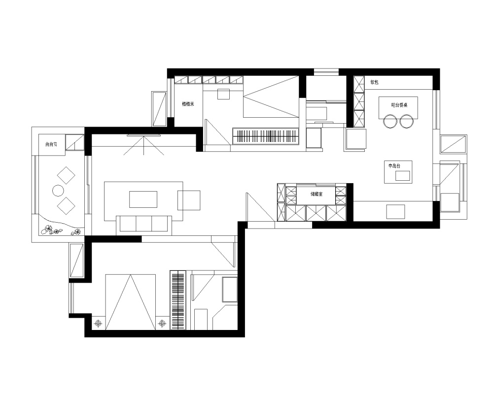
- 平面规划
- >
- 住宅
- >
- 三居室- 求高手优化平面 悬赏500
- 2016-07-09
- 4535
- 2
- 0
AI文本分析中……
AI色彩命名中……
序赞Ai时刻等待着你的命令!~
与Ai对话形式持续执行相关Ai智能体任务。
罗毅2016-8-5 14:27:25
| |
听,伤雨纷纷2016-8-5 15:20:40
| |
451651512016-8-5 15:36:43
| ||
451651512016-8-5 15:37:02
| ||
罗毅2016-8-5 17:30:22
| |
听,伤雨纷纷2016-8-5 18:36:21
| ||
罗毅2016-8-5 21:54:52
| |
hoyi-2016-8-8 12:21:57
RE: 三居室- 求高手优化平面 悬赏500
| ||
梦佳2016-8-8 23:43:47
RE: 三居室- 求高手优化平面 悬赏500
| ||
梦佳2016-8-9 22:46:01
| |




