AI文本分析中……
AI色彩命名中……

序赞Ai时刻等待着你的命令!~

与Ai对话形式持续执行相关Ai智能体任务。

L丨H丨P2016-8-31 14:59:31
起风了.2016-8-31 16:50:55
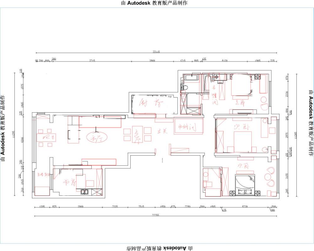
家具比例什么情况?
wqg2016-9-1 16:27:24
探讨探讨
闲来无事分享一个户型向大家学习一下看都有哪些思路_101913kfxzvw5vb3zoxoeo.jpg
wqg2016-9-1 16:28:05

RE: 闲来无事分享一个户型向大家学习一下看都有哪些思路


欢迎拍砖
rock炸酱面2016-9-2 09:14:27

RE: 闲来无事分享一个户型向大家学习一下看都有哪些思路


我觉得思路挺好,但就是厨房和卫生间对调的话可行性大不大
丝瓜我2016-9-2 13:10:15
问题很多,加油学习!{:4_182:}
wqg2016-9-2 13:55:50

RE: 闲来无事分享一个户型向大家学习一下看都有哪些思路

丝瓜我 发表于 2016-9-2 13:10
问题很多,加油学习!

提出来探讨探讨啥
12
您需要登录后才可以回帖 登录 | 注册序赞号

快速回复 返回顶部 返回列表