
- 2016-09-05
- 7923
- 1
- 0
AI文本分析中……
AI色彩命名中……
序赞Ai时刻等待着你的命令!~
与Ai对话形式持续执行相关Ai智能体任务。
GDGHJ2017-9-7 15:41:20
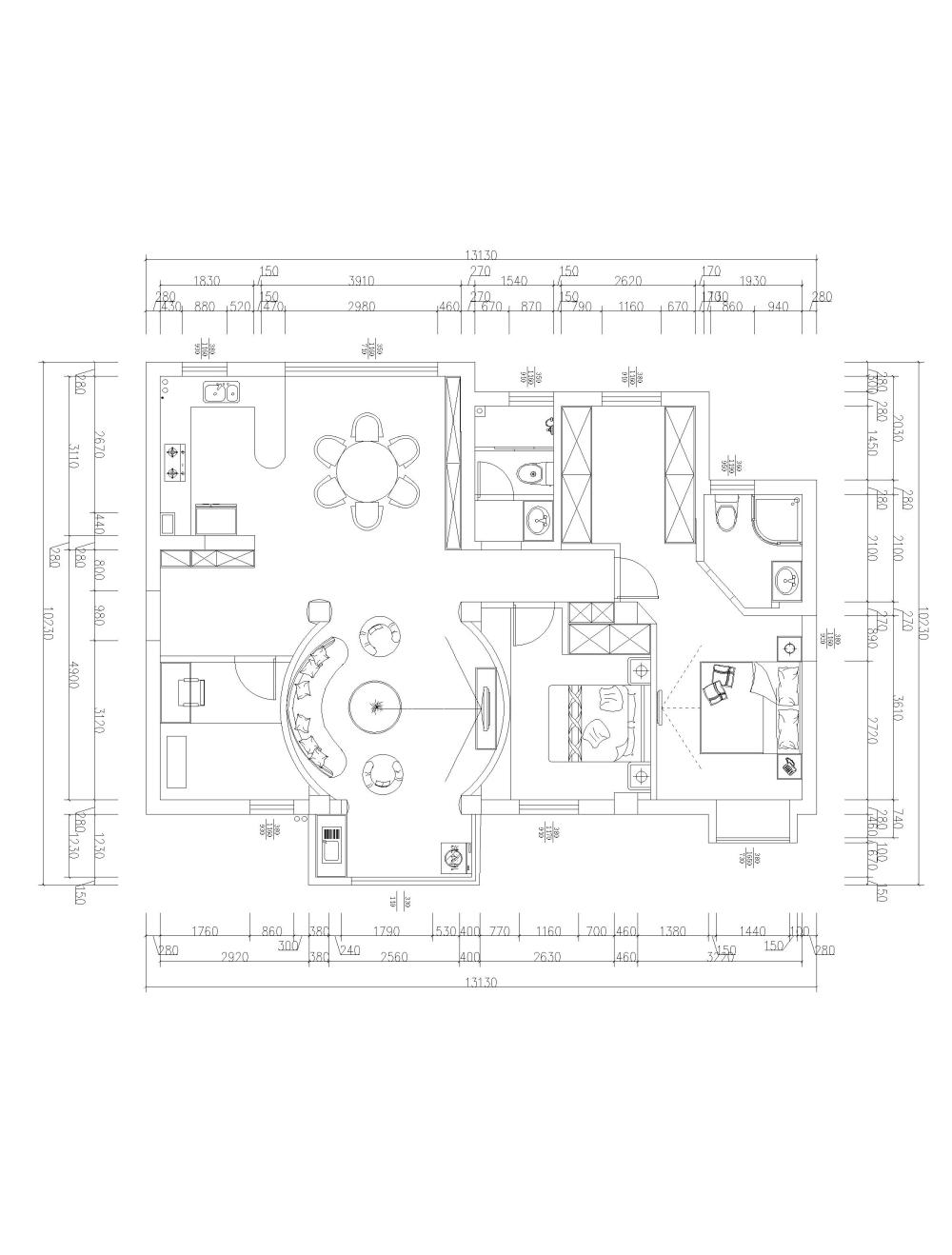
RE: 125套型,进门一根大柱子,求各位大神出手求......
| ||
还是女人国好2017-9-7 16:19:57
RE: 125套型,进门一根大柱子,求各位大神出手求......
| ||
细孥钕2017-9-8 12:02:51
| |
1240706020a2017-9-8 17:47:25
RE: 125套型,进门一根大柱子,求各位大神出手求......
| ||
DoOne2017-10-10 10:41:21
| |
傻、傻地笑2017-10-10 14:56:38
| |
傻、傻地笑2017-10-10 14:59:40
| |
浏览过的版块 |



