
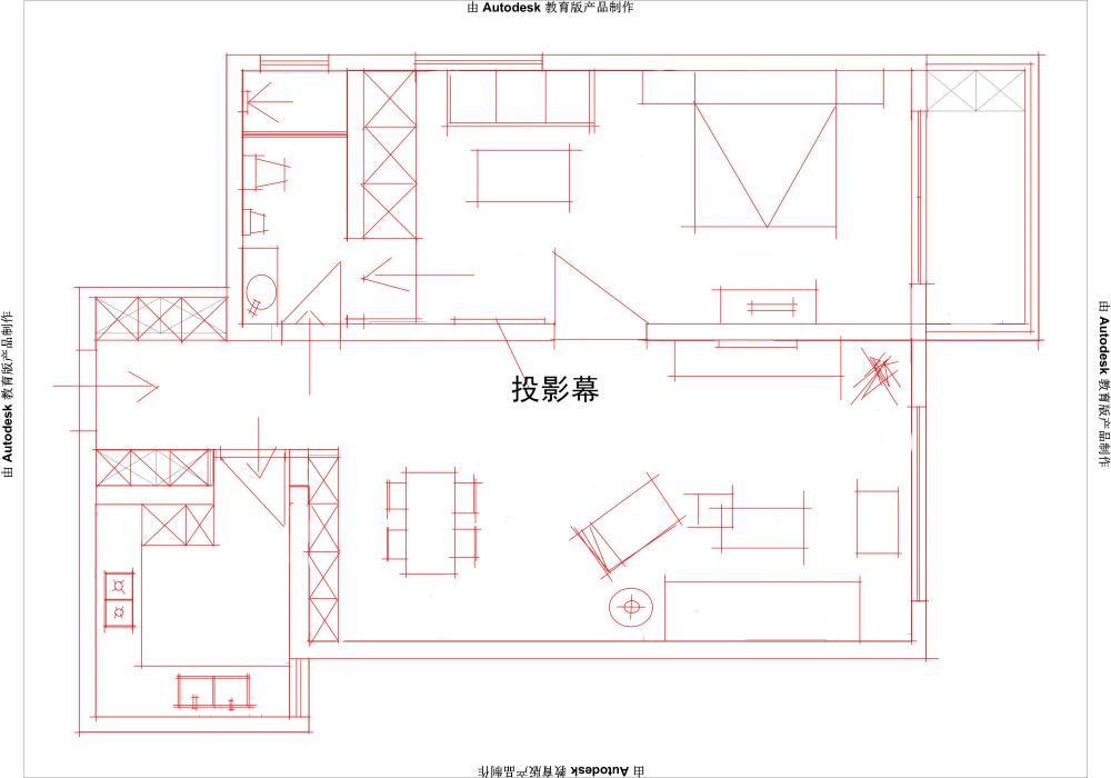
- 平面规划
- >
- 住宅
- >
- 小户型两室改一室,不怕刺激。。
- 2016-11-02
- 4952
- 0
- 0
AI文本分析中……
AI色彩命名中……
序赞Ai时刻等待着你的命令!~
与Ai对话形式持续执行相关Ai智能体任务。
嗯小难2016-11-7 16:01:16
RE: 小户型两室改一室,不怕刺激。。
| ||
洛尔迪2016-11-8 11:20:14
RE: 小户型两室改一室,不怕刺激。。
| ||
weixuan19912016-11-8 12:13:21
RE: 小户型两室改一室,不怕刺激。。
| ||
嗯小难2016-11-9 10:27:42
RE: 小户型两室改一室,不怕刺激。。
| ||
嗯小难2016-11-9 10:34:00
RE: 小户型两室改一室,不怕刺激。。
| ||
洛尔迪2016-11-9 10:36:24
RE: 小户型两室改一室,不怕刺激。。
| ||
weixuan19912016-11-9 11:38:23
RE: 小户型两室改一室,不怕刺激。。
| ||
嗯小难2016-11-9 13:52:26
| |
嗯小难2016-11-9 13:59:00
RE: 小户型两室改一室,不怕刺激。。
| ||
weixuan19912016-11-9 15:22:05
| |
浏览过的版块 |



