
- 2017-02-25
- 3511
- 1
- 0
AI文本分析中……
AI色彩命名中……
hg09242017-2-28 09:23:01
| |
阿达神殿2017-2-28 09:53:42
| |
hg09242017-2-28 18:12:21
| ||
hg09242017-3-1 14:13:11
| ||
小炳2017-3-1 17:21:12
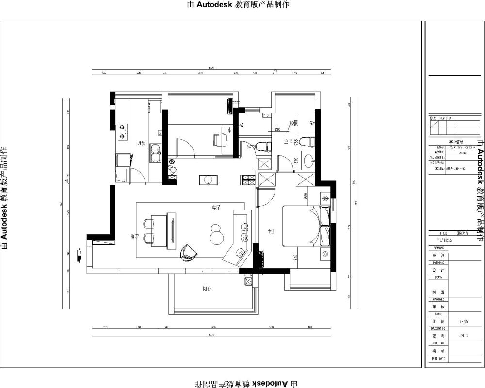
RE: 小户型 不知道如何处理客厅 求大神解答 优化
| ||
sgf5417609872017-3-2 12:00:40
| ||
hg09242017-3-7 09:01:52
| ||
8703737852017-3-7 14:58:00
| |
Hi.唉斯诶哧2017-3-8 10:00:38
| |
12




