
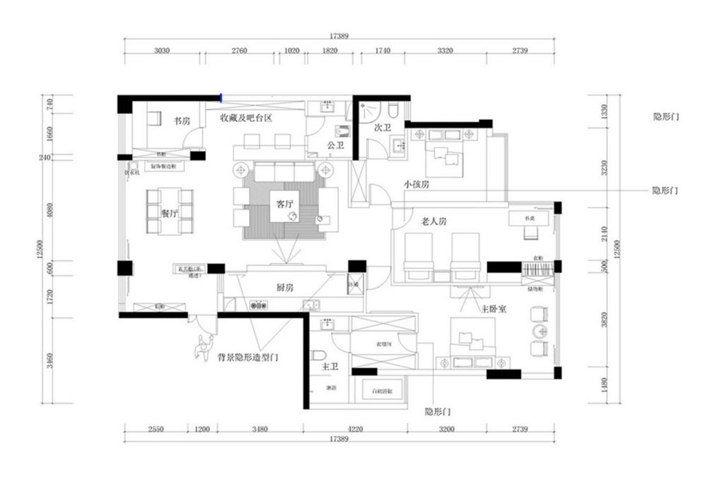
- 平面规划
- >
- 住宅
- >
- 【画界】侃侃方案设计成长历程篇...
- 2017-04-06
- 32446
- 43
- 7
AI文本分析中……
AI色彩命名中……
序赞Ai时刻等待着你的命令!~
与Ai对话形式持续执行相关Ai智能体任务。
画_界i2017-8-8 15:20:17
RE: 【画界】侃侃方案设计成长历程篇...
| ||
画_界i2017-8-8 15:21:06
RE: 【画界】侃侃方案设计成长历程篇...
| ||
画_界i2017-8-8 15:22:34
| ||
画_界i2017-8-8 15:22:45
| ||
画_界i2017-8-10 22:57:29
RE: 【画界】侃侃方案设计成长历程篇...
| ||
还是女人国好2017-8-11 09:07:14
| |
wx_Klaus_QOGKd2017-8-11 14:52:08
| |
画_界i2017-8-13 17:44:38
RE: 【画界】侃侃方案设计成长历程篇...
| ||
画_界i2017-8-13 17:44:55
| |
Lolita大洋2017-8-14 10:10:05
| ||



