
- 2017-07-29
- 88805
- 80
- 43
AI文本分析中……
AI色彩命名中……
序赞Ai时刻等待着你的命令!~
与Ai对话形式持续执行相关Ai智能体任务。
jiayuan862018-3-26 17:12:30
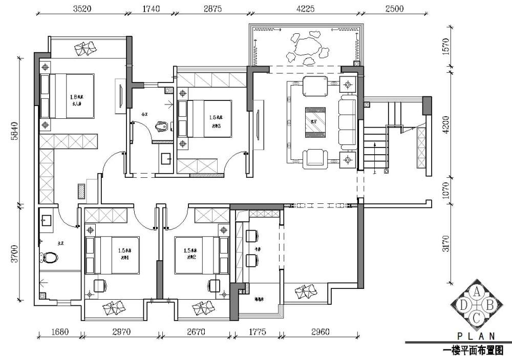
RE: 户型优化方案交流,愿这个帖子记录着大家成长路上的每...
| ||
jiayuan862018-3-26 17:13:38
RE: 户型优化方案交流,愿这个帖子记录着大家成长路上的每...
| ||
jiayuan862018-3-26 17:17:41
RE: 户型优化方案交流,愿这个帖子记录着大家成长路上的每...
| ||
Aigo952018-3-28 09:39:22
| ||
jiayuan862018-3-28 15:07:30
| |
jiayuan862018-3-28 15:08:18
RE: 户型优化方案交流,愿这个帖子记录着大家成长路上的每...
| ||
jiayuan862018-4-7 18:32:21
RE: 户型优化方案交流,愿这个帖子记录着大家成长路上的每...
| ||
糊了的胡子2018-4-8 20:00:28
RE: 户型优化方案交流,愿这个帖子记录着大家成长路上的每...
| ||
jinwei2018-4-9 11:07:45
| ||
SHOW三刀流2018-4-9 13:51:48
| ||



