
- 2017-08-04
- 6921
- 0
- 0
AI文本分析中……
AI色彩命名中……
序赞Ai时刻等待着你的命令!~
与Ai对话形式持续执行相关Ai智能体任务。
我从七院逃出来2017-8-8 15:27:08
| ||
王智涛2017-8-8 15:40:47
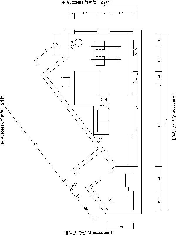
RE: 不规则单身公寓 平面求助!!希望大神给点建议
| ||
花开又花落2017-8-8 19:18:51
RE: 不规则单身公寓 平面求助!!希望大神给点建议
| ||
王智涛2017-8-9 08:51:04
| |
我从七院逃出来2017-8-9 09:05:07
| ||
王智涛2017-8-9 09:30:42
RE: 不规则单身公寓 平面求助!!希望大神给点建议
| ||
我从七院逃出来2017-8-9 09:41:01
| ||
我从七院逃出来2017-8-9 09:42:30
| ||
zengliang2017-8-9 10:51:28
| ||
王智涛2017-8-9 11:01:16
| |
浏览过的版块 |



