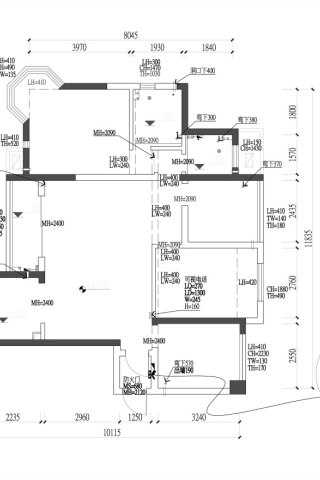
三房住宅求方案(求火爆)
11年前发布在平面规划要求:
1,中央空调,不做地暖
2,即执式电热水器(主卧室,次卧室)
3,简约中式风格,
4,一间主卧室,一间小孩房(男孩,读高中)一间书房(独立,考虑客餐厅用推拉门玻璃的形式)
5,入户门可移出
6,主卧室不 ...



预览图片
56张个人收集的外景,窗景,背景贴图
11年前发布在产品应用P1
P2
P3
P4
P5
P6
P7
P8
P9
P10
P11
P12
P13
P14
P15
P16
P17
P18
P19
P20
P21
P22
P23
P24
P25
P26
P ...



预览图片



