vsszan114808242325151.jpg

受Sanders Mello Orthodontics的委托,Buro/S建筑事务所将瓦森纳尔Langstraat 79的国家纪念碑改造成了一个现代化的正畸诊所。纪念碑的特征被保留下来,并与当代建筑元素巧妙地结合在一起。原来的建筑可以追溯到17世纪上半叶,其特点是两端墙壁之间有一个独特的山墙屋顶。这是一种所谓的“深屋”——一种具有狭窄正面和延伸到地块深处的平面图的住宅。建筑的朝向与街道垂直,屋顶的脊也是如此。该物业由三个部分组成:国家纪念碑,右侧和后方的结构状况非常差的扩建部分,以及后面的车库。在过去的一百年里,这座建筑被用作商店;在此之前,它是一个村庄的农舍。附属建筑,包括一个干草仓,曾经矗立在与后街接壤的后方地块上。Buro/S建筑事务所在内部修复了纪念碑,必要时在外部修复,并在建筑的右侧和后部增加了新的扩展部分。新结构的设计允许未来可能在后面垂直延伸。在建筑的前面引入了一个新的立面,结合了新的主入口。
vsszan114808242325152.jpg

vsszan114808242325153.jpg

vsszan114808242325154.jpg

前立面由三面布局定义,由两个深棕色砖墩组成,与纪念碑原砖的颜色一致。它们之间是一面玻璃墙,从购物街上可以看到这座17世纪建筑的轮廓。入口位于桥墩之间的中心,由涂有“地球绿色”阴影的釉面钢框架制成。相邻的消防通道是一个带有微妙圆形穿孔的实心金属门。在这些元素之上,一个抛光的深绿色混凝土门楣在视觉上连接了这些组件。扩建部分的新立面精心融入了建筑的历史文脉,创造了一个和谐的整体。
vsszan114808242325155.jpg

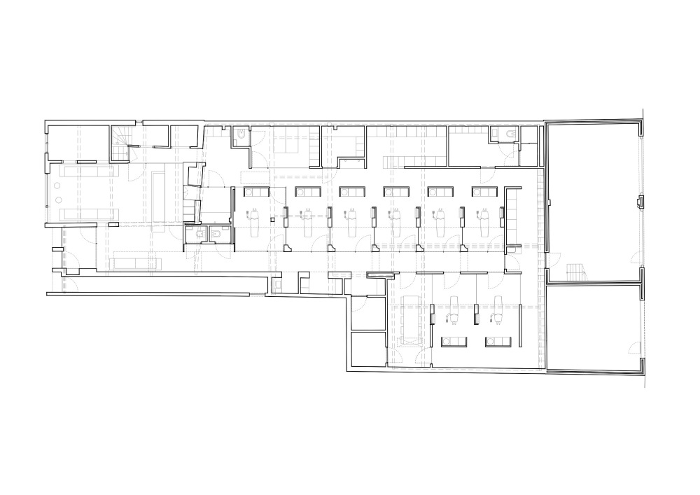
诊所提供八间治疗室和所有必要的配套设施。室内布局经过精心设计,保留了尽可能多的历史元素,并与现代功能干预相辅相成。新扩建的建筑面积约为400平方米,旨在最大限度地利用自然光。天窗沿着主入口轴线安装在屋顶上,为相邻的走廊提供充足的日光,并作为自然的寻路元素,帮助游客在建筑中穿行。为病人和工作人员创建了单独的流通路线,有助于营造卫生的工作环境和平静、宁静的氛围。游客通过新的入口进入建筑;左侧是抛光的混凝土接待台和纪念碑部分的入口,其中包含了实践的等候区。在这里,原来的砖墙被暴露出来,天花板被漆成原来的浅绿色。
vsszan114808242325156.jpg

vsszan114808242325157.jpg

vsszan114808242325158.jpg

接待处的右侧是访客走廊,所有的治疗室和辅助功能都位于这里。走廊上方的天窗不仅提供日光,还巧妙地帮助确定方向。员工路线与访客路径分开,以确保患者和员工不会交叉路径。办公室、仓库、灭菌室等员工设施直接连接到这条路线。可持续发展在这一转变中发挥着核心作用。新增加的部分使用可持续材料和节能机械装置建造。由于采用了综合方法,这些功能得以实现,而不损害纪念碑的历史价值。Buro/S建筑事务所在遗产保护和当代使用之间取得了谨慎的平衡。Langstraat 79的改造展示了一座历史建筑如何被赋予新的、可持续的目的,同时尊重其过去并保持其建筑意义。通过微妙的干预和高品质材料的使用,一个和谐的整体出现了,真实的元素和现代建筑相互增强。
vsszan114808242325159.jpg

vsszan1148082423251510.jpg
vsszan1148082423251511.jpg
vsszan1148082423251512.jpg
vsszan1148082423251513.jpg
vsszan1148082423251514.jpg
vsszan1148082423251515.jpg
vsszan1148082423251516.jpg
vsszan1148082423251517.jpg
vsszan1148082423251518.jpg
  • 项目设计:Buro/S Architects
  • 项目面积: 600.0m²
  • 项目年份:2025
  • 项目摄影:Aiste Rakauskaite
  • 供应商:  MHB, Maas en Hagoort, Mosa, Petersen Tegl, Saint Gobain Glass, Tomaello
  • Category: Healthcare Architecture, Clinic, Refurbishment
  • Lead Team: Mahyar Nikkhoy, Saghar Wafae
  • 设计团队: Buro/s architects
  • 项目国家: The Netherlands
  • 转载自:Archdaily
  • 设计师:Buro/S Architects
  • 图片©Buro/S Architects
  • 语言:英语
  • 编辑:序赞网
  • 阅读原文
Ai 分析中……

暂无用户创作记录!~

记录用户以此项目图片为灵感使用Ai进行二次创作。

暂时没有评论,你回一个呗!~

您需要登录后才可以回帖 登录 | 注册序赞号

快速回复 返回顶部 返回列表