
- 平面规划
- >
- 住宅
- >
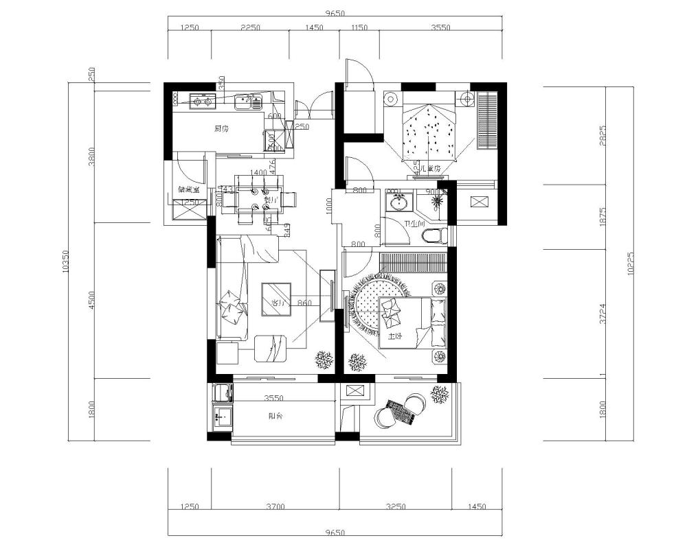
- 杭州世茂江滨花园。次卧。厨房纠结。
- 2011-11-04
- 6518
- 1
- 0
| |
AI文本分析中……
AI色彩命名中……
序赞Ai时刻等待着你的命令!~
与Ai对话形式持续执行相关Ai智能体任务。
lbl8905292011-11-4 19:23:52
| ||
预留的伏线2011-11-4 19:27:12
| |
4649213722011-11-5 13:29:41
| ||
烟雨2011-11-5 15:22:31
| ||
蓝海道浪子2011-11-7 15:13:09
| ||
了2011-11-10 09:59:12
| ||
了2011-11-10 10:05:59
| ||
预留的伏线2011-11-10 16:13:01
| |
wang5634768742011-11-30 11:09:36
| ||




