求指正
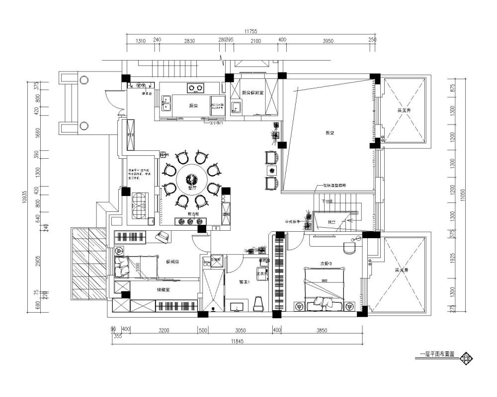
各位批批看啊   各路大侠  餐厅那块有点别扭   要放一米五的圆桌

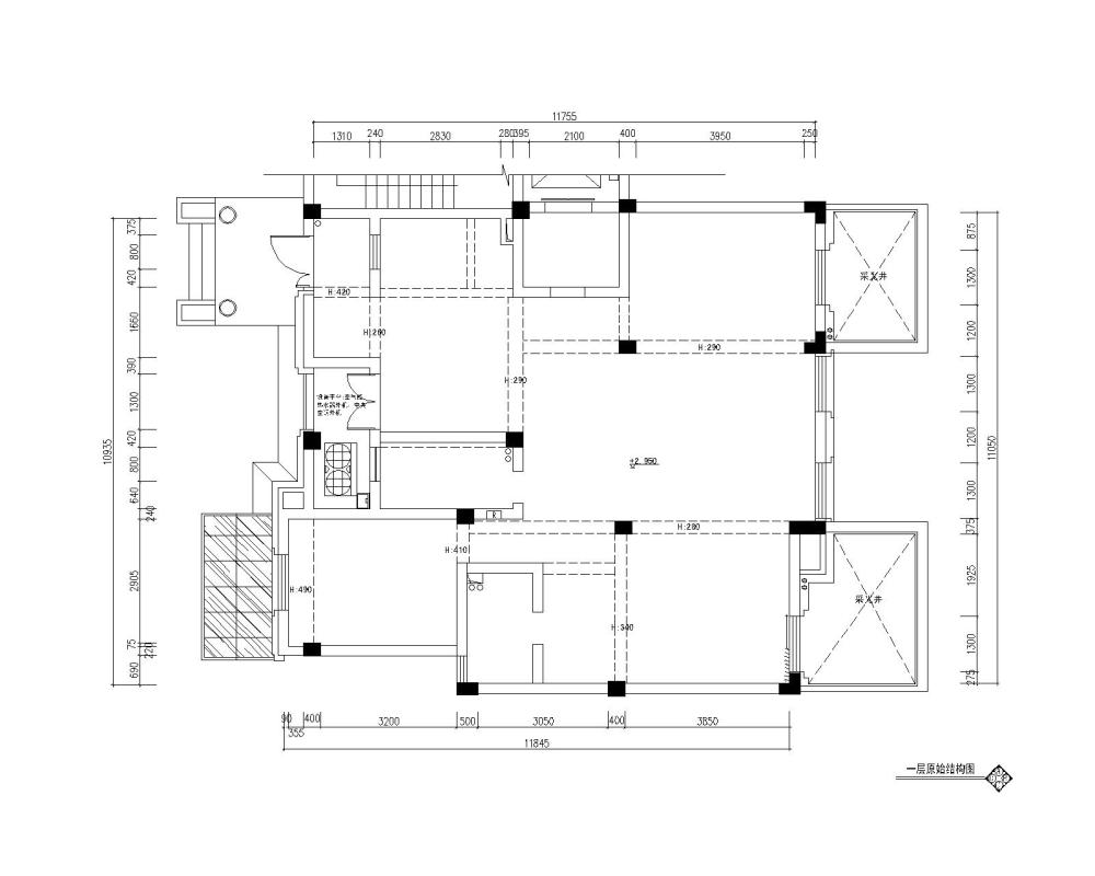
一层原始

求指正_一层原始

一层平面

求指正_一层平面

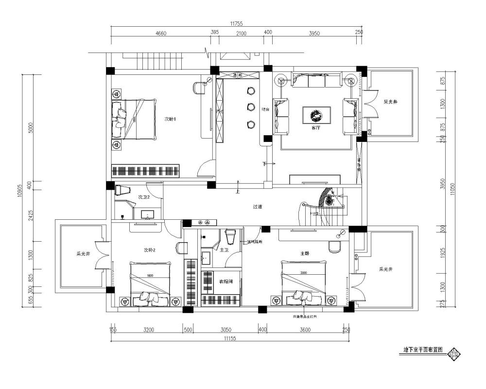
底下平面

求指正_底下平面

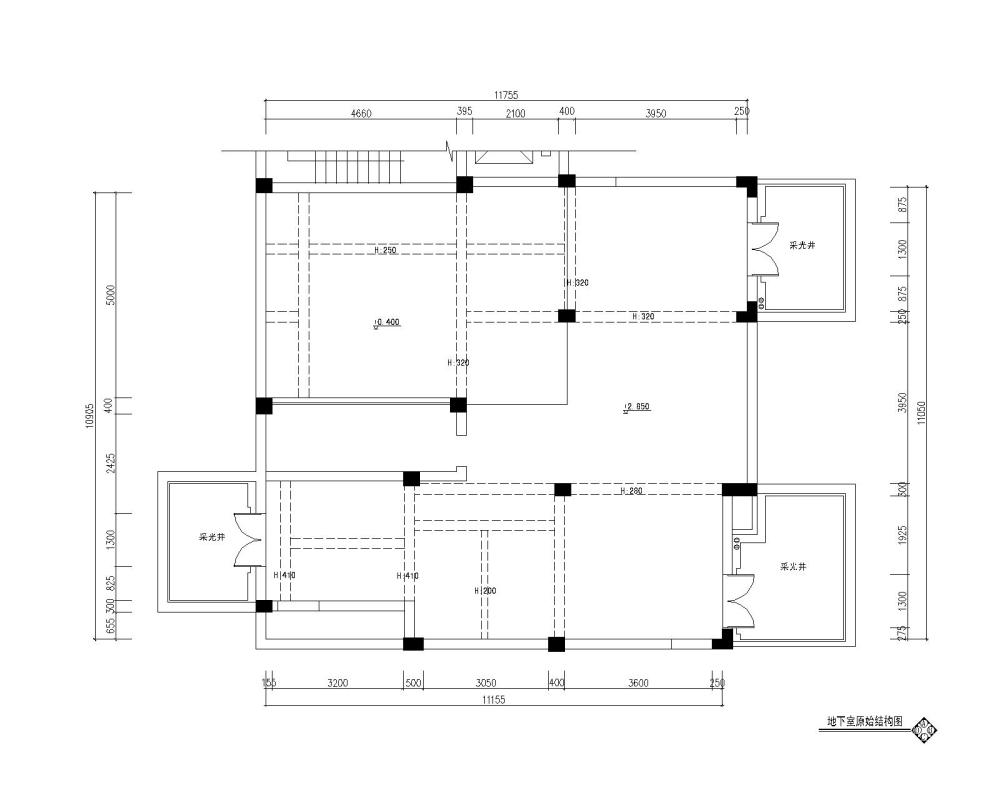
底下原始

求指正_底下原始
AI文本分析中……
AI色彩命名中……

序赞Ai时刻等待着你的命令!~

与Ai对话形式持续执行相关Ai智能体任务。

暂时没有评论,你回一个呗!~

您需要登录后才可以回帖 登录 | 注册序赞号

快速回复 返回顶部 返回列表