
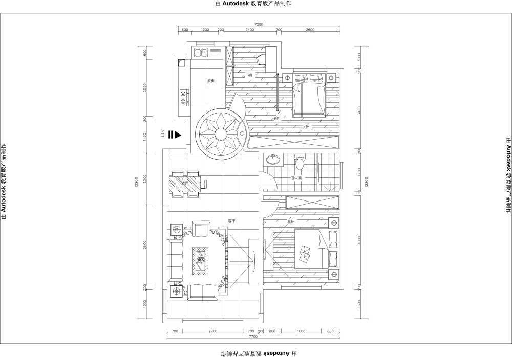
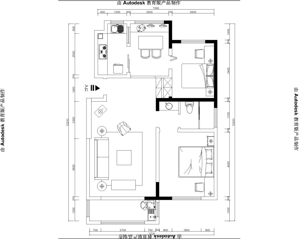
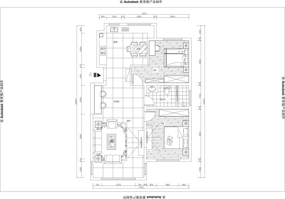
- 平面规划
- >
- 住宅
- >
- 一个经典小户型,求大师们指点!!
- 2012-10-24
- 8105
- 2
- 5
| |
AI文本分析中……
AI色彩命名中……
序赞Ai时刻等待着你的命令!~
与Ai对话形式持续执行相关Ai智能体任务。
紫枫叶2012-10-24 12:52:56
| ||
fyxiong2012-10-24 18:21:34
| ||
紫枫叶2012-10-25 09:21:53
| |
molloy2012-10-25 10:04:00
| |
fyxiong2012-10-25 11:26:40
| |
fyxiong2012-10-25 11:33:18
| |
自然而然2012-10-25 12:28:03
| ||
紫枫叶2012-10-25 14:29:54
| |
紫枫叶2012-10-25 14:31:36
| |






