中国秦皇岛 青少年营地体验中心 李虎 黄文菁
中国秦皇岛 青少年营地体验中心 李虎 黄文菁

设计年份:2012
甲方 :歌华文化发展集团,小天使行动基金
功能 :剧场、画廊、多媒体厅、大师工作室、DIY空间、书吧、咖啡厅等
建筑面积: 2,700平方米
用地面积: 4800平方
地点: 中国,秦皇岛项目团队:CREDIT SHEET
项目主持人 :李虎、黄文菁设计团队 :戚征东、托马斯、赵耀、林忠礼、汪剑柃、吴岚、葛蕊诗、Sigmund Lerner、朱德顺
合作设计院: 建研科技股份有限公司
照明顾问 :北京八番竹灯光照明有限公司
施工团队 :河北建设集团、江苏建工

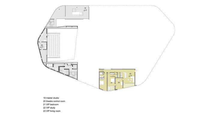
                      这是一个先锋式的青少年营地体验中心,选址北戴河,一个有着特殊历史与文化意义的北方海滨小城。整个建筑被包围在园林式的景观之中,若隐若现,隔绝于城市的喧嚣之外。营地总建筑面积2700平方米,功能需求包括剧场、大型活动空间、大师工作室、DIY空间、咖啡厅、书吧、小型多媒体厅、VIP室等。为了最大限度保留基地本身自然、利用最少的资源去创造最大化的空间丰富性,OPEN设计的建筑完全与自然融为一体,内部空间相互开放,并与室外连通,形成开敞流动的空间体验。同一个空间在不同的场合下可以发挥不同的功能。建筑中心的内庭院,不仅是全年的景观,同时也可以扩展为观众席来观看剧场的演出。建筑屋顶为绿化和活动场地,于是基地100%的面积都被利用起来,成为室外活动场地,这对青少年营地是非常重要的一个方面。
120席位的剧场虽然规模不大,但却可以承担非常专业和高质量的演出。当剧场舞台后两层大型折叠门缓缓打开,室外庭院出乎意料地被纳入剧场空间,小型剧场顿时变身成一个全新的大型演出场所。演员从室内演到室外,庭院中的一草一木都成为表演的一部分,观众将在戏剧化的意外中享受一种不同寻常的观看体验。另外的一种场景下,沿着斜坡升起的室外庭院也可以成为理想的观众席。人们既可以在庭院观看演出,也可以将其中一扇折叠门用作投影墙,欣赏露天电影。这座由歌华文化发展集团投资建设的建筑将为中国青少年发展基金会小天使行动基金提供夏令营及培训场所,同时它也会成为北戴河地区一个重要的文化中心。



1.jpg

2.jpg

3.jpg

4.jpg

5.jpg

6.jpg

7.jpg

8.jpg

9.jpg

10.jpg

11.jpg

12.jpg

13.jpg

14.jpg

15.jpg

16.jpg

17.jpg

18.jpg

19.jpg

20.jpg

21.jpg

23.jpg

26.jpg

28.jpg

29.jpg

30.jpg
AI文本分析中……
AI色彩命名中……

序赞Ai时刻等待着你的命令!~

与Ai对话形式持续执行相关Ai智能体任务。

彼岸的灯塔2012-11-2 16:32:52
这个体验中心的互动、开放性加强的很好!
sccs33532013-7-10 16:10:37
很不错,有创意
您需要登录后才可以回帖 登录 | 注册序赞号

快速回复 返回顶部 返回列表