大侠们帮我看看啊!
本帖最后由 zyl1988 于 2012-12-31 19:54 编辑

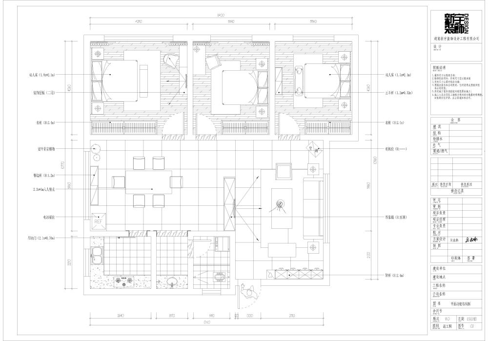
平面功能布局主案一-Model.jpg

平面方案.dwg
1.92 MB,下载次数:80
AI文本分析中……
AI色彩命名中……

序赞Ai时刻等待着你的命令!~

与Ai对话形式持续执行相关Ai智能体任务。

默言2012-12-30 10:02:53
进门处可做点端景。餐厅有些空。厨房和卫生间布局的些浪费
萧十藝郎2012-12-30 11:18:55
本帖最后由 萧十藝郎 于 2013-1-3 15:39 编辑

怎么说.....想法太单一了....没有更好的处理好空间的关系!建议你把CAD文件放上来!!好啦......由于放假所以没及时看到!个人觉得!既然这么小得空间墙又不能拆那么到是可以做的有些趣味性!!你觉得呢??
Drawing1.dwg
260.32 KB,下载次数:17
zyl19882012-12-31 19:56:39
默言 发表于 2012-12-30 10:02
进门处可做点端景。餐厅有些空。厨房和卫生间布局的些浪费

做了端景会不会有点堵啊。
zyl19882012-12-31 19:57:11
萧十藝郎 发表于 2012-12-30 11:18
怎么说.....想法太单一了....没有更好的处理好空间的关系!建议你把CAD文件放上来!! ...

大侠,CAD上传了,指点啊。
简简不治仍2013-1-1 11:53:07
这墙能打?  怎么都是24墙啊!!
zyl19882013-1-2 22:11:06
简简不治仍 发表于 2013-1-1 11:53
这墙能打?  怎么都是24墙啊!!

所有的墙都不能拆。
默言2013-1-3 14:49:53
zyl1988 发表于 2012-12-31 19:56
做了端景会不会有点堵啊。

不用做太宽。60公分左右,主要是让你一进大门不会一览无遗。
jxymt2013-1-3 15:01:47
是旧房改造吗,他们家要这么多卧室吗。
zyl19882013-1-4 19:38:36
jxymt 发表于 2013-1-3 15:01
是旧房改造吗,他们家要这么多卧室吗。

不是旧房,三房都不要么?你是哪里人。
下一页
12下一页
您需要登录后才可以回帖 登录 | 注册序赞号

快速回复 返回顶部 返回列表