对业主负责,求设计突破,大师都来看看吧
3.jpg
54.jpg
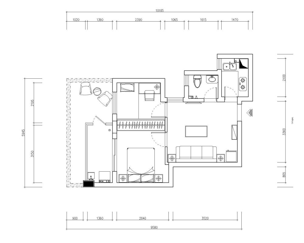
房屋建筑面积54,业主是一对小年轻,要求是两房,准备结婚用{:16:}求大师指点
对业主负责,求设计突破,大师都来看看吧_1.jpg
AI文本分析中……
AI色彩命名中……

序赞Ai时刻等待着你的命令!~

与Ai对话形式持续执行相关Ai智能体任务。

呆xiao主2013-3-27 12:20:11
{:15:}为什么啊,为什么啊?怎么没有人评论啊、、、、、???
您需要登录后才可以回帖 登录 | 注册序赞号

快速回复 返回顶部 返回列表