160平 求教 期待不一样的精彩
天山公寓-Mll.jpg
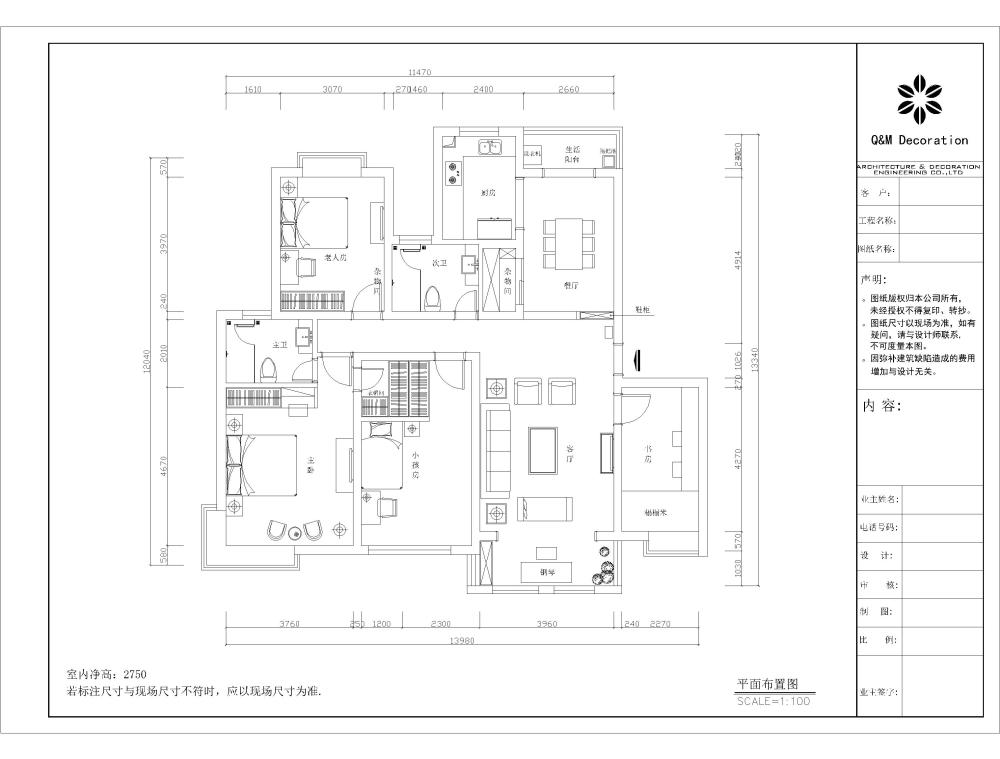
三世同堂  业主30岁 生意人 有一个儿子 一岁  客人比较多 有时会有七八个人 所以客厅要足够坐得下  有一台钢琴 长一米五 宽六百  杂物间的门怎么处理餐厅的感觉会好些   风格为欧式与地中海的混搭
AI文本分析中……
AI色彩命名中……

序赞Ai时刻等待着你的命令!~

与Ai对话形式持续执行相关Ai智能体任务。

池上月2013-8-7 23:39:17
天山公寓-Model.jpg
池上月2013-8-7 23:40:09
天山公寓.dwg
612.06 KB,下载次数:9
池上月2013-8-7 23:41:59
多多指教 小弟不胜感激
池上月2013-8-8 11:02:16
求回复 求回复   
池上月2013-8-8 14:40:07
亲 能踩两脚再走吗 我需要你们
xiaoxiong5132013-8-8 17:13:23
卧室和卫生间没有一个合理滴,客厅也不好。
池上月2013-8-9 08:57:55
xiaoxiong513 发表于 2013-8-8 17:13
卧室和卫生间没有一个合理滴,客厅也不好。

谢谢建议 不过可以清晰点吗 我也知道不合理 只是不清楚怎么做才好
您需要登录后才可以回帖 登录 | 注册序赞号

快速回复 返回顶部 返回列表