第一次来求大师指教啊,跪谢!!!
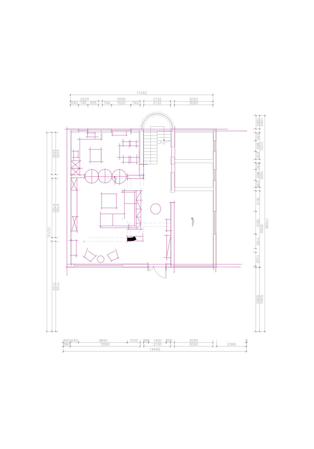
一层平面,要加大厨房和餐厅,然后客厅看看,再卫生间帮忙处理下
第一次来求大师指教啊,跪谢!!!_Model.jpg
第一次来求大师指教啊,跪谢!!!_Modewl.jpg
AI文本分析中……
AI色彩命名中……

序赞Ai时刻等待着你的命令!~

与Ai对话形式持续执行相关Ai智能体任务。

zjskycm2013-8-27 14:48:54
随意构图 仅限参考
第一次来求大师指教啊,跪谢!!!_Image005.jpg
全明志2013-8-27 15:18:05
zjskycm 发表于 2013-8-27 14:48
随意构图 仅限参考

厨房感觉挺闪亮的,谢谢。      我想把沙发放在西边,有什么好的办法吗........
全明志2013-8-27 16:37:17
{:15:}还有没有人帮忙啊.......
wswl2013-8-28 10:16:30
交流使人进步!
第一次来求大师指教啊,跪谢!!!_3.jpg
全明志2013-8-28 10:45:15
wswl 发表于 2013-8-28 10:16
交流使人进步!

非常好,思路一下就开了,非常感谢
您需要登录后才可以回帖 登录 | 注册序赞号

快速回复 返回顶部 返回列表