
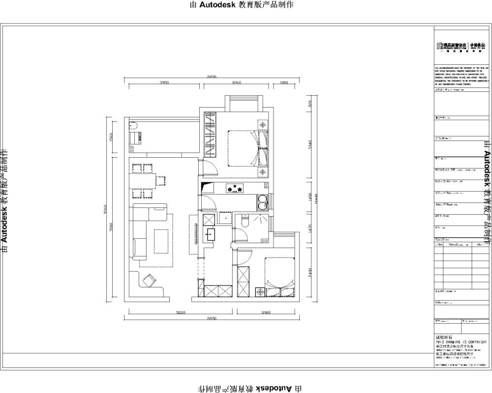
- 平面规划
- >
- 住宅
- >
- 很奇葩的户型~! 看下还有得救没~!
- 2013-09-03
- 7590
- 1
- 0
| |
AI文本分析中……
AI色彩命名中……
序赞Ai时刻等待着你的命令!~
与Ai对话形式持续执行相关Ai智能体任务。
烟雨2013-9-3 21:03:10
| ||
烟雨2013-9-3 21:05:01
| ||
林熙明2013-9-3 21:34:28
| ||
zhang199106082013-9-4 09:17:15
| ||
烟雨2013-9-4 09:30:36
| |
烟雨2013-9-4 09:33:42
| |
zhang199106082013-9-4 10:08:29
| |
逍遥佛2013-9-4 10:33:10
| ||
烟雨2013-9-4 16:33:02
| ||




