样板房A平面布置求解!
144503rmdee2nmmenqqdmk.jpg
Ai图片分析,需要登录阅读

144518ccs806b1oxmn6fbm.jpg
Ai图片分析,需要登录阅读

195948ghakafusptee81tz_jpg_thumb.jpg
Ai图片分析,需要登录阅读

195956phcvl1v4hv55ahah_jpg_thumb.jpg
Ai图片分析,需要登录阅读
大家给给意见啊!
Ai 分析中……

暂无用户创作记录!~

记录用户以此项目图片为灵感使用Ai进行二次创作。

4545581162013-11-4 18:10:06
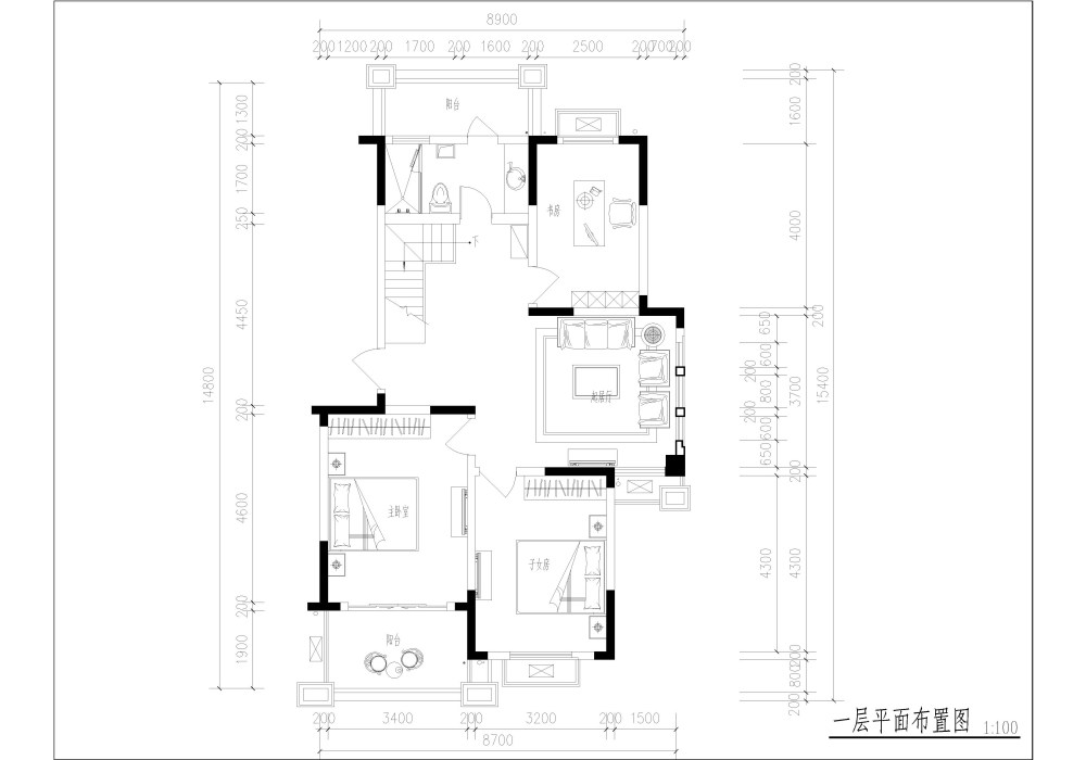
这个是原建筑平面

1

样板房A平面布置求解!_1

2

样板房A平面布置求解!_2
4545581162013-11-9 20:43:19
亲们帮帮我啦,样板房的方案痛苦啊!客户说没什么创意,胆子不够大,所以占时不能给大老板看!我不能等死啊,初学者来求救啦!
样板房上A.dwg
( A )
567.03 KB,下载次数:13
样板房上b.dwg
( B )
681.19 KB,下载次数:16
您需要登录后才可以回帖 登录 | 注册序赞号

快速回复 返回顶部 返回列表