求帮忙,餐厅感觉太小了
求帮忙,餐厅感觉太小了
求帮忙,餐厅感觉太小了_1.jpg
求帮忙,餐厅感觉太小了_1.jpg
AI文本分析中……
AI色彩命名中……

序赞Ai时刻等待着你的命令!~

与Ai对话形式持续执行相关Ai智能体任务。

壹玖捌捌設計2013-11-23 11:46:51
希望可以帮到你。
调整13.jpg

4VISION2013-11-23 11:47:31
{:1:} 亲 自己先上方案好不好呢
liqiang123882013-11-23 11:56:16
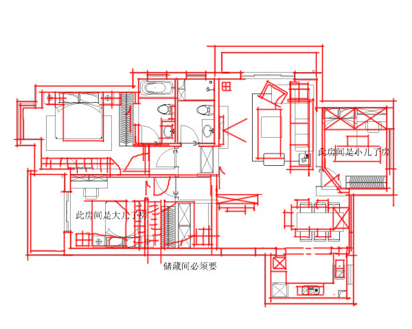
多谢大家帮助,这家有两个儿子
求帮忙,餐厅感觉太小了_2.jpg
4VISION2013-11-24 09:55:43
{:1:}拿来学习学习 试下 同个贴
4VISION2013-11-24 10:33:56
{:15:}{:15:}{:15:}
152219vkwuxkaua99nmuux.jpg.thumb.jpg
您需要登录后才可以回帖 登录 | 注册序赞号

快速回复 返回顶部 返回列表