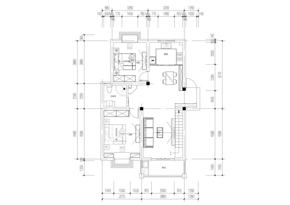
朋友的复式的房子 帮看一下 平面平庸 求高手指点
本帖最后由 wxf5313 于 2014-1-14 14:37 编辑

喜欢现代风格 要求动线合理 夫妻两和父母住  
两室两厅140102-Model.jpg

两室两厅1401022pg.jpg




AI文本分析中……
AI色彩命名中……

序赞Ai时刻等待着你的命令!~

与Ai对话形式持续执行相关Ai智能体任务。

默言2014-1-14 16:55:33
1进门的鞋柜和电视背做成整体,空间感会理好看。
2.你的客厅沙发和餐厅餐桌的位置足够吗?
bonham2014-1-15 12:02:43
入户玄关不方正,餐厅区太小,主卧门对面是啥?书房可以移到二楼啊,把主卧空间释放出来
wxf53132014-1-17 13:43:09
默言 发表于 2014-1-14 16:55
1进门的鞋柜和电视背做成整体,空间感会理好看。
2.你的客厅沙发和餐厅餐桌的位置足够吗? ...

电视背景墙后面是楼梯 不好整体处理
wxf53132014-1-17 13:43:53
bonham 发表于 2014-1-15 12:02
入户玄关不方正,餐厅区太小,主卧门对面是啥?书房可以移到二楼啊,把主卧空间释放出来 ...

主卧门对面还不知道怎么做
您需要登录后才可以回帖 登录 | 注册序赞号

快速回复 返回顶部 返回列表