新人求批,谢谢
布置了下总觉得怪怪的,不得要领很困惑,大神指点一二感激不尽

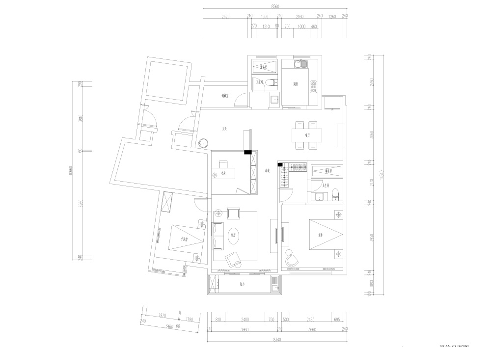
原始图

新人求批,谢谢_原始图

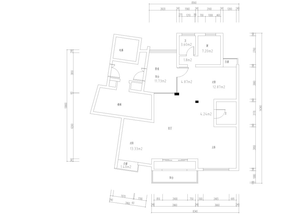
布置图

新人求批,谢谢_布置图
AI文本分析中……
AI色彩命名中……

序赞Ai时刻等待着你的命令!~

与Ai对话形式持续执行相关Ai智能体任务。

暂时没有评论,你回一个呗!~

您需要登录后才可以回帖 登录 | 注册序赞号

快速回复 返回顶部 返回列表