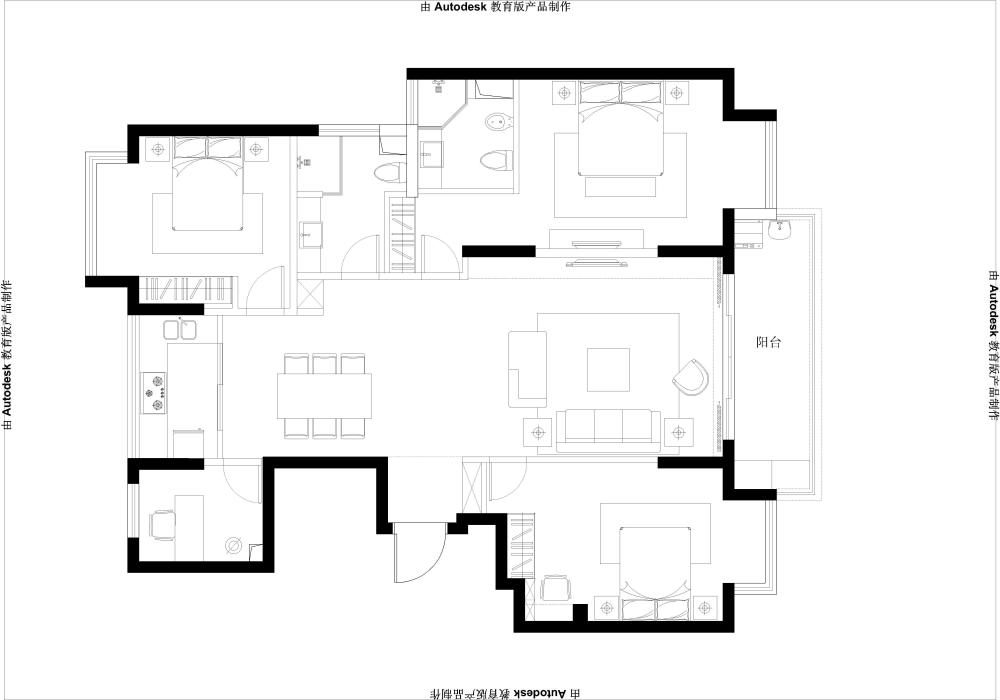
坑爹的户型
平面图.jpg
这个平面感觉很不舒服,房间里面柜子不够多,主要是客厅和餐厅太大,很浪费。客人要求,三个卧室,一个书房。很坑爹的平面。麻烦哪位帮我指点一二
AI文本分析中……
AI色彩命名中……

序赞Ai时刻等待着你的命令!~

与Ai对话形式持续执行相关Ai智能体任务。

暂时没有评论,你回一个呗!~

您需要登录后才可以回帖 登录 | 注册序赞号

快速回复 返回顶部 返回列表