寻求空间互动性及舒适感
    业主是一对新婚夫妇,作为婚房。 寻找入户到厨房餐厅的好方案,厨房可以做开放或独立。(房子位于贵州贵阳)
    希望能通过交流提高自己,麻烦大家了。

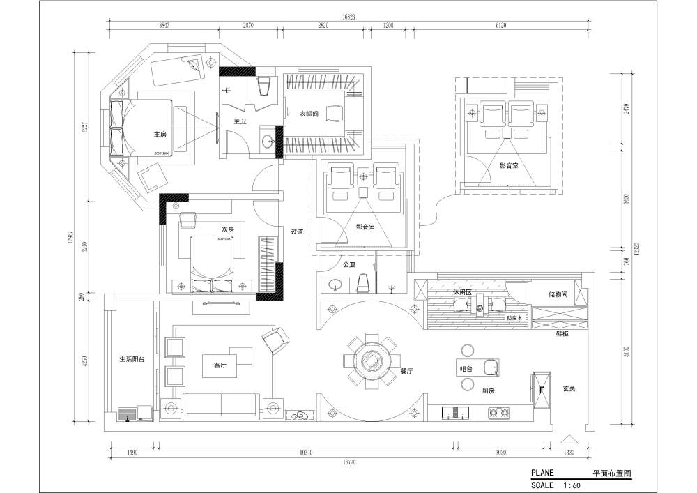
原始平面图

寻求空间互动性及舒适感_原始平面图

寻求空间互动性及舒适感_一

寻求空间互动性及舒适感_二

寻求空间互动性及舒适感_三
AI文本分析中……
AI色彩命名中……

序赞Ai时刻等待着你的命令!~

与Ai对话形式持续执行相关Ai智能体任务。

二哥2014-4-18 13:54:10
134807vv2s0g59591x29wl 拷贝.jpg

fengyuelv2014-4-18 16:37:19
他家吊顶不??吊顶就移 厨房, 买一个大功率的油烟机,比如说17立方/分钟的。

这应该就是切入点了~~其他的,我相信你可以处理的~
anwzst2014-4-18 17:44:27
fengyuelv 发表于 2014-4-18 16:37
他家吊顶不??吊顶就移 厨房, 买一个大功率的油烟机,比如说17立方/分钟的。

这应该就是切入点了~~其他 ...

你的意思是把厨房移到一个适合的位置。这个好像挺难去实施,我没有这方面的经验,不懂。还是常规去规划吧。
anwzst2014-4-18 17:52:02
二哥 发表于 2014-4-18 16:22

感谢P图,厨房移到阳台确实舒服多,不过大规模的迁移有几点问题:1.烟道的加长,导致油烟残留与管道中2.重点是物管会不同意的。
anwzst2014-4-18 17:54:31
fengyuelv 发表于 2014-4-18 16:37
他家吊顶不??吊顶就移 厨房, 买一个大功率的油烟机,比如说17立方/分钟的。

这应该就是切入点了~~其他 ...

谢谢你的意见,不过迁移厨房会带来一些问题:1.烟道加长油烟积累,2.下水。
二哥2014-4-18 17:57:21
anwzst 发表于 2014-4-18 17:52
感谢P图,厨房移到阳台确实舒服多,不过大规模的迁移有几点问题:1.烟道的加长,导致油烟残留与管道中2. ...

我有个在施工的比这还夸张  具体实施还要看你那边具体情况了
anwzst2014-4-19 09:57:49
二哥 发表于 2014-4-18 17:57
我有个在施工的比这还夸张  具体实施还要看你那边具体情况了

感谢你的建议
anwzst2014-4-19 14:00:42
测量图不是本人画。经他人得之。
原始图.dwg
( 原始平面图 )
73.41 KB,下载次数:5
您需要登录后才可以回帖 登录 | 注册序赞号

快速回复 返回顶部 返回列表