本帖最后由 fengyuelv 于 2014-4-18 15:58 编辑

大局观

大局观

一层平面

一层平面

二层原始户型

二层原始户型

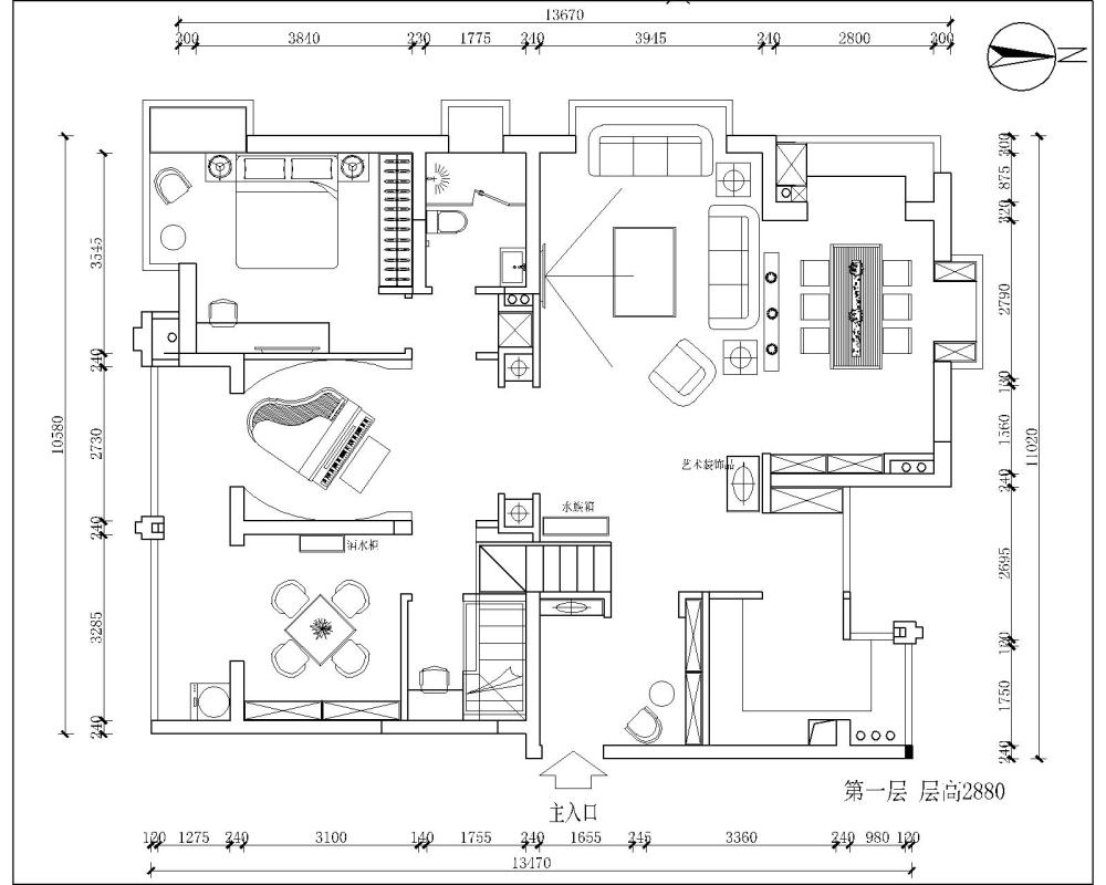
一层平面布置

一层平面布置

二层平面布置

二层平面布置

CAD稍后奉上~~

设计要求

260平米,LOFT户型,江景房…有没有手痒的大神来尝试?_设计要求
Ai 分析中……

暂无用户创作记录!~

记录用户以此项目图片为灵感使用Ai进行二次创作。

fengyuelv2014-4-18 15:55:18
CAD倾情奉上~~如果需要尺寸准确的,可以看看~~
江景房.dwg
( CAD亲情奉上 )
738.26 KB,下载次数:168
fengyuelv2014-4-19 11:58:44
人工置顶~~求大神指点一下啊~~
fengyuelv2014-4-20 08:52:12

人工置顶~~求大神指点一下啊~~
您需要登录后才可以回帖 登录 | 注册序赞号

快速回复 返回顶部 返回列表