七岩海滩小熊之家
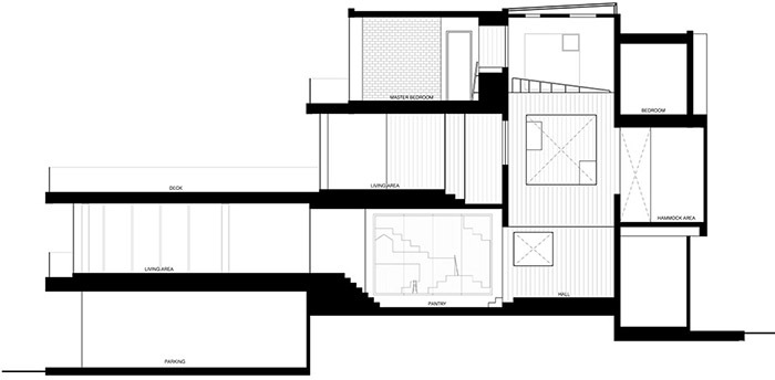
小熊之家位于泰国中部地区著名的海滨度假胜地七岩海滩,离曼谷大约三个小时的车程。该设计是将一个长28米宽8米,占地面积380平方米的三层建筑变成Sahawat家庭的第二个家。2011年开始实施内部工程时,业主有一个2岁的大儿子和一个未出生的孩子。2012年,小熊之家改造完成。


_c_pdW6UONsR3vi1yMKIOodrnI6h5l4WXVwQMGWKcMLwAwYPTCLfgA_qpIRC4MvY1qU2NcNKKkbG7AwGTWikpyu_mVpvEdS-48t.jpg

该项目业主是泰国Be@rbrick玩具收藏家Sittawat Sahawat 和 Nipapat Sahawat夫妇。他们十分热爱收集迈迪蔻玩具公司(Medicom Toy) 推出的各式各样Be@rbrick公仔。Be@rbrick公仔外形简单,有着标志性的大肚腩。每个公仔都由九个部分组成,即头、身躯、臀、两条胳膊、两只手和两条腿,其关节和头可以灵活转动。很多艺术家都曾为公仔模型设计过装饰图案,如英国时装设计师Vivian Westwood和美国纽约传奇式的涂鸦艺术家Stash。BAPE迷彩图案公仔是Sahawat家庭的主要藏品,有28厘米高的400% Be@rbricks公仔,和7厘米高的100% Be@rbrick基本款公仔。


_c__l_f7pWJi2SWK5aB29Ih2nZIKZXAgzHOl5lbM2hU2ADC3dWOmn0T2A4lUkptL_UaTO15R9XQmX4gp4nKsFa3WBAElXb_ieqt.jpg

尺寸对于这个小熊之家来说十分重要。设计时,设计师首先考虑了Be@rbricks展示橱窗,其次才是房屋的布局。设计师将橱窗想象成17个400% Be@rbricks公仔的家,内设台阶、梯子和28厘米高的大个儿公仔"居住"的空间。展示橱窗占据了餐厅的整面墙壁,将房间入口与三层高的起居空间联系在一起,它是住宅的核心和整个房间结构的缩影。橱窗由浅色的橡树板材制成,与住宅墙壁的主要材质相似。小熊之家是大版的Be@rbricks展示橱窗。


_c_qH4ptUiCexqZ5cH78cf51lrsTN0MfDu-QP4XUNVULCD0bG1197UhtTeLhyvrfQ98UIYLek7HyhMPIqFcmo4eaR91O9gGyPTe.jpg

_c_qBRAkVFXd7nffhAnnzay1m_6Vgotc3edBZCeBeTjerkTwDEDRjWV0hPXku8uPlTeRUYYmWzoh5tS19I3MnP4pcIotHYnDStB.jpg

小熊之家的特点是小型装置和大型家具的对比运用。其中灯具和枕头都是大尺寸的,为居住者营造一种渺小的感觉。门把手有四种不同的尺寸,适用于不同大小的门。这些门把手对于孩子们来说过大,而对于大人们来说却又偏小。高高的楼梯是居住空间的装饰元素之一,将视线引向顶部的方形天窗,大尺寸的孔洞和不同大小的窗户。从楼上的每个房间都能看到起居室高高的厅堂。


_c_RPfxcbTg3VpwJJSbgyrqHHeGuEYL7Z5JBmwzUg00Vj-hycFo0ax1RTN5I8kU2AM2isTN66L70LN5NYPALqjAQJ5eD_NQKEtr.jpg

_c_fafCViucTJwcwrekYTKrugdZQsEHf3sx83nvri-eeLvqk_qT0ig8IF0pvamqIx9TJj_VeI-srsnRkaHKXaAlqADzmEd93aPY.jpg

_c_7IOBaEhEeVjjf_zQjiP9Nro8GNBFP6TQeSAzKL9Bp-ChIeLnxOKcWcmZoZ6xaP4GHek6TxyrTDXx1k2G0WW2Q4_Rk23NQwcQ.jpg

_c_ateZ8N8FLf9K46vTKTsyqoCysIvZM8WbUb_t6qDaRHQFMAuOAiQ27TE3FpCV-6btPr9esJH2kAS9QGmndxG5VvTx1pdMt-gM.jpg

_c_NOM4iqPDOtSpNHoaGZBLeL31UfVPr7YkB0sYpxtQzJdRm8Ol2k5-gmz9LYEXJzPMmQwl8k4MuWL7_40xxpG83Tnq_0x80E3l.jpg

主卧安装了一个放大版的Be@rbrick’s梯子。梯子连接了特大号床和小"阁楼"内布置的小床。小床提供了两种不同的视野—起居室高高的厅堂和对面房间外的海景。主卧前面是由法国品牌Paul&Joe和日本迈迪蔻玩具公司合作生产的70厘米高、绘有警服图案的1000% Be@rbrick公仔。从二楼的起居区、卧室和楼梯与通往主卧的斜道之间的楼梯平台上可以看到这只大号公仔。


_c_34G2E6gjWwk8qRp2BWS470nDvNU8fsWfkraROGKS2alvUR2pj57fN-IROUWIBVwUgdu_JsBfRkf6I_ybHawYGpoBqLUxjfnG.jpg

_c_T2DyBpU1BvQVrBlad3bIIz6Wf18ifi8vM2ZYb8ujil7-xG0XE_6I2bXmVCo-TP0S_7V7mPQ4FrR5R9lx9v0biu28NKNUVvzW.jpg

_c_THb-rWOM9Yf-KjDaHHge-6fKs0C5v92KCJbGt4rGFw66SJqWUAvrj5LT2IEmb0S3dZX7BPIidW5M5sml0HjHUTQYvNHNmkq9.jpg

_c_eqIDEkS6ujOqlNzKOO3jfnQVK7z82ahMpyzVijMEfUx_yibM8_spI2tw3gIm2zqGsvhDoBhkRQtnrw7Pvo-I5i27YRnywutd.jpg

_c_uytJhh_W95IeTGk6AErev7rysFLAjt7gdaVDms_c3MSBFPFe9NStgqawcHGaYvDDeGbSmdplLgO1iIImb0bX5FM6X7f6vY9z.jpg

小熊之家明亮而快乐。房屋的前部分分布着起居室和泳池。泰国著名的年轻涂鸦艺术家MMFK and P7为整个空间设计了可爱的动物涂鸦。起居室内的大号沙发后面是穿着水手服的独眼怪兽(MMFK)和长着条纹眉毛的蓝色熊(P7)。泳池旁11米长的墙壁上是MMFK设计的一只熊正在吞噬独眼怪兽的卡通形象,而旁边是P7画的一只额头写着“surf”字样的黑熊。这些可爱的涂鸦是为小熊之家专门设计的。


_c_ryahPVHapYFbnqiBOSY2Y_o5iqOoYfKHAEv-fOOV9qThnMm2skAdZBaYsgc_2b5MQOdvaQx3C4dCKaFzfBpRkG9_PegCTLcI.jpg

_c_4-0P-CiTC8VgDr8QZAl2bmUOVaWB6excKa5wod1ffkas1sSN5InAbYbaV_SEpm5Gwh4LHgEDKOPITdc1FAnRoVaU0OAzrunD.jpg

_c_dY52xVh4Yi1r8OUmYlHpv8AsPROP3Zw81rTJO6AgEWK29z48VifGG2SPwlO_KUK7295MDYldCdMKWe-37SY_I1PAT7_ZVmwL.jpg

_c_H6Z3QojOzN88Ha6dSGa-wBd5NPjy894f66lwQhBFLIg-ZjuNvaUOSPuojZafKLnWqTsm5_tnLPtMBi4F7Vq64DOTubexBcYX.jpg

_c_TKmqAEdUxj0pftT1K4rERwKii8HrvtPkT1e4YKFD9pkO_ezYRKFi_D08bPbt68tdyOBIMOcGuc-JDHWCWxcX622Q3_RIbc2Q.jpg
  
_c_-ON435NpgI7jYvCp3dxeW1r4ZUxoownIqWvh7Beow7b3EJV5kzFQha0N__2iVjUPeiSEtBksadKL6ZYtA1MncYzbImWj-Ikh.jpg

_c_uUzQRgkqz9PJ5TT8HLemxWZi4OYSMkNu3EdBXvMNv67cIL0CGo9EloBlNTQRAh8nGaZ0xZ5m1kvUKEf4VPKLNA5YaKHJcnmI.jpg

_c_MBHW-ZS3kiGq-UY99xbN2t7v2GpoVmZRKwCoAMSxVkopYKFQe7v79n68n8_MpbYWi7fUEcl8zrzXY8Pgp7_8eALlEE4X2c1a.jpg

_c_itPxfCgDfS5Aw7ypMNlqiqw7_qS5in7L7PADB3UNUdIIrK_W_fOP3S5zBl5KqRGvsB5KWG6lHnh-wrssgzoTK2S8p3eYao5S.jpg
AI文本分析中……
AI色彩命名中……

序赞Ai时刻等待着你的命令!~

与Ai对话形式持续执行相关Ai智能体任务。

您需要登录后才可以回帖 登录 | 注册序赞号

快速回复 返回顶部 返回列表