
- 平面规划
- >
- 住宅
- >
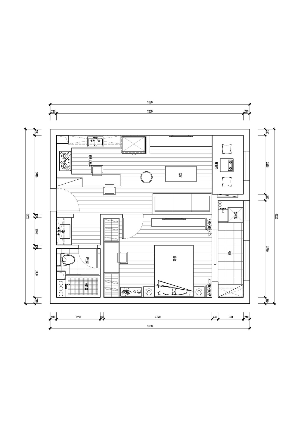
- 小弟第一套60平米方案求各位大侠指点
- 2014-07-24
- 1954
- 0
- 5
| |
AI文本分析中……
AI色彩命名中……
序赞Ai时刻等待着你的命令!~
与Ai对话形式持续执行相关Ai智能体任务。
正义兔子2014-7-24 15:45:01
| ||
清汤面2014-7-24 16:06:03
| ||
正义兔子2014-7-24 16:47:56
| ||
7478494472014-7-24 17:07:56
| ||
正义兔子2014-7-24 17:17:02
| ||

| |
序赞Ai时刻等待着你的命令!~
与Ai对话形式持续执行相关Ai智能体任务。
正义兔子2014-7-24 15:45:01
| ||
清汤面2014-7-24 16:06:03
| ||
正义兔子2014-7-24 16:47:56
| ||
7478494472014-7-24 17:07:56
| ||
正义兔子2014-7-24 17:17:02
| ||
