
- 平面规划
- >
- 住宅
- >
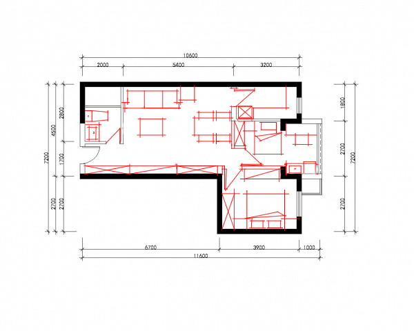
- 新手一枚,75平建筑面积,求平面布局
- 2014-08-15
- 4095
- 0
- 0
| |
AI文本分析中……
AI色彩命名中……
序赞Ai时刻等待着你的命令!~
与Ai对话形式持续执行相关Ai智能体任务。
7478494472014-8-15 17:13:23
| ||
绯色的夏娜2014-8-15 22:54:33
| ||
renjianshige2014-8-17 11:11:10
| ||
我宁愿天真无邪2014-8-17 11:25:21
| ||
我宁愿天真无邪2014-8-17 11:26:23
| ||
我宁愿天真无邪2014-8-17 11:27:08
| ||
renjianshige2014-8-17 11:40:43
| ||
绯色的夏娜2014-8-17 15:52:14
| ||
7478494472014-8-18 11:13:14
| ||



