新手做的平面方案,没有亮点,就大家救救。
新手做的平面方案,没有亮点,就大家救救。  业主是搞艺术的,风格是新中式。希望设计师设计的给人眼前一亮的感觉。要有佛堂,跳舞的地方,还有要联系书法。一个儿子一个女儿。三楼为主卧。

地下室原始图

新手做的平面方案,没有亮点,就大家救救。_地下室原始图

一层原始图

新手做的平面方案,没有亮点,就大家救救。_一层原始图

二层原始图

新手做的平面方案,没有亮点,就大家救救。_二层原始图

三层原始图

新手做的平面方案,没有亮点,就大家救救。_三层原始图

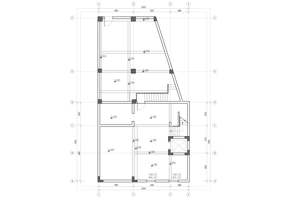
阁楼原始图

新手做的平面方案,没有亮点,就大家救救。_阁楼原始图

地下室平面方案

新手做的平面方案,没有亮点,就大家救救。_地下室平面方案

一层平面方案

新手做的平面方案,没有亮点,就大家救救。_一层平面方案

二层平面方案

新手做的平面方案,没有亮点,就大家救救。_二层平面方案

三层平面方案

新手做的平面方案,没有亮点,就大家救救。_三层平面方案

阁楼平面方案

新手做的平面方案,没有亮点,就大家救救。_阁楼平面方案
11.dwg
706.65 KB,下载次数:11
AI文本分析中……
AI色彩命名中……

序赞Ai时刻等待着你的命令!~

与Ai对话形式持续执行相关Ai智能体任务。

暂时没有评论,你回一个呗!~

您需要登录后才可以回帖 登录 | 注册序赞号

快速回复 返回顶部 返回列表