
- 平面规划
- >
- 住宅
- >
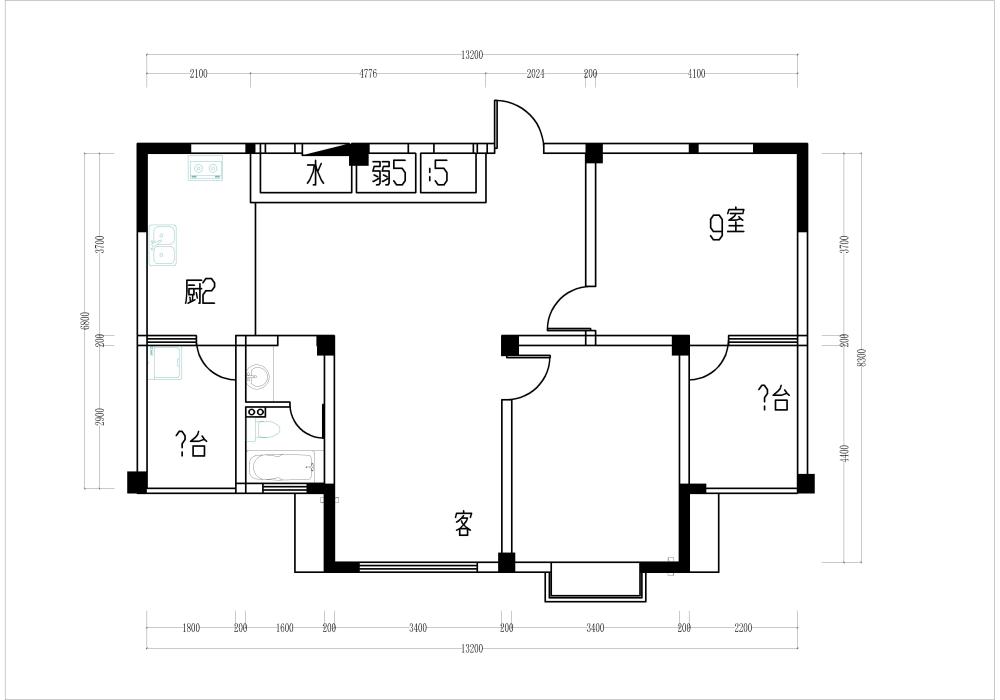
- 户型不是很好,尤其是光线方面
- 2014-11-22
- 2344
- 1
- 1
| |
AI文本分析中……
AI色彩命名中……
序赞Ai时刻等待着你的命令!~
与Ai对话形式持续执行相关Ai智能体任务。
2574953194r2014-11-22 17:07:09
| ||
chenhp8262014-11-22 21:03:43
| ||
chenhp8262014-11-22 21:07:15
| ||
夜深、不睡2014-11-23 08:20:06
| ||
夜深、不睡2014-11-23 08:27:53
| ||




