
- 平面规划
- >
- 住宅
- >
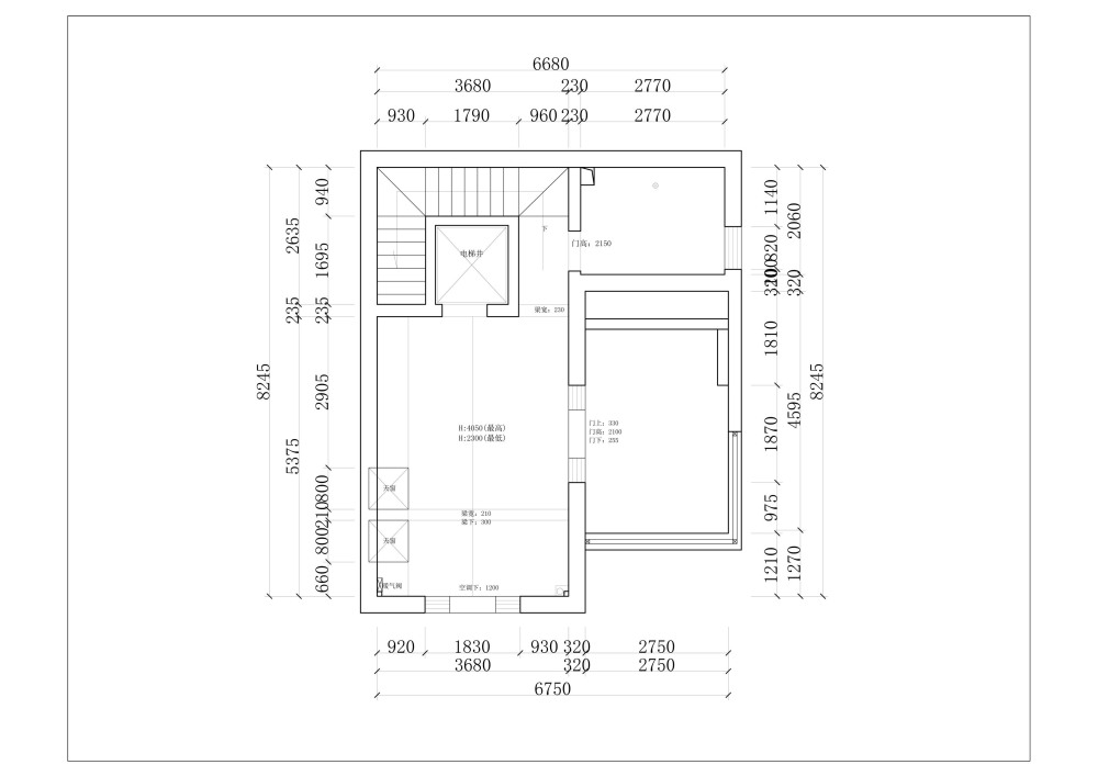
- 一套小别墅的平面布置方案 求指教
- 2014-11-23
- 2300
- 0
- 0
| |
AI文本分析中……
AI色彩命名中……
序赞Ai时刻等待着你的命令!~
与Ai对话形式持续执行相关Ai智能体任务。
sws19866252014-11-23 00:11:20
| ||
sws19866252014-11-23 00:29:30
| ||
sws19866252014-11-23 17:00:57
| ||
立根破岩★2014-11-24 10:19:13
| ||
sws19866252014-11-24 23:33:46
| ||




