
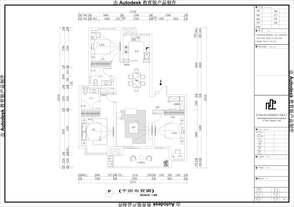
- 平面规划
- >
- 住宅
- >
- 刚做的平面方案,求突破
- 2014-12-21
- 2692
- 0
- 0
| ||
AI文本分析中……
AI色彩命名中……
序赞Ai时刻等待着你的命令!~
与Ai对话形式持续执行相关Ai智能体任务。
打不死的小阿文2014-12-21 11:31:17
| ||
绯色的夏娜2014-12-21 12:05:55
| ||
11743726062014-12-21 13:07:31
| ||
外出追梦的男人2014-12-21 14:07:57
| ||
11743726062014-12-22 09:41:32
| ||




