
- 平面规划
- >
- 住宅
- >
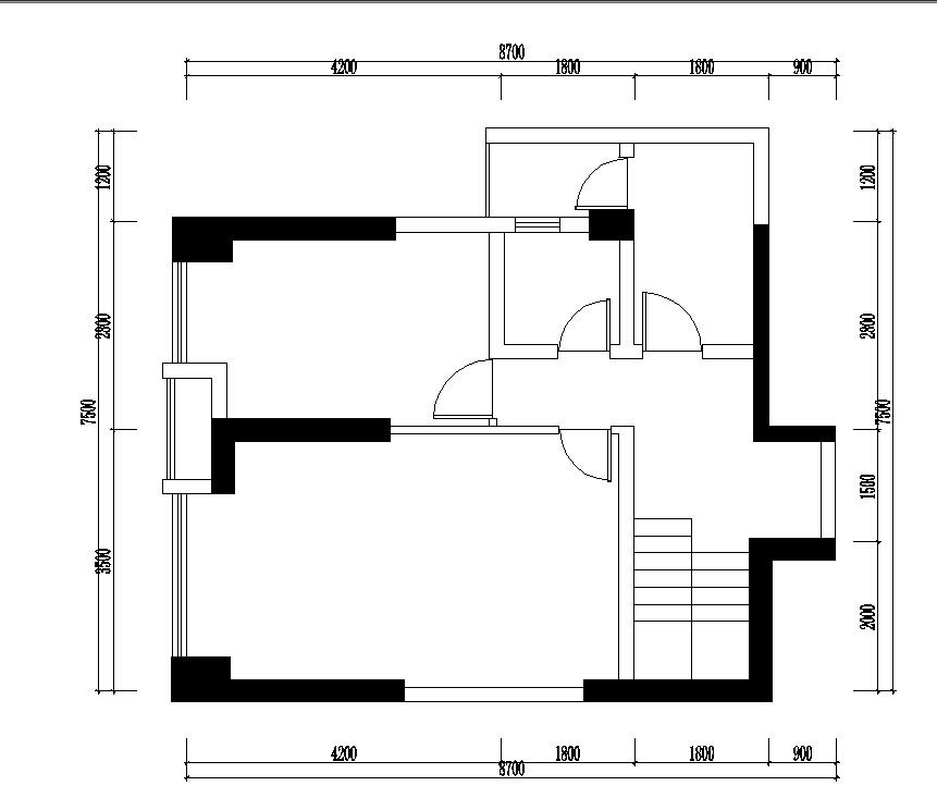
- 帮帮忙,看看这户型怎么改呢?
- 2015-01-20
- 4217
- 1
- 1
| |
AI文本分析中……
AI色彩命名中……
序赞Ai时刻等待着你的命令!~
与Ai对话形式持续执行相关Ai智能体任务。
zy872262015-1-21 12:30:05
| ||
4034055892015-1-23 15:28:05
| ||
峰生水起2015-1-26 17:11:30
| ||
linyi1022015-1-20 19:01:05
| ||
archolic2015-1-21 00:43:14
| ||
晚山2015-1-21 10:56:09
| ||
xianmingzhu2015-1-21 11:11:09
| ||
xianmingzhu2015-1-21 11:12:00
| ||
zy872262015-1-21 11:48:49
| ||
zy872262015-1-21 13:11:01
| ||
zy872262015-1-21 13:11:39
| ||





