123456789
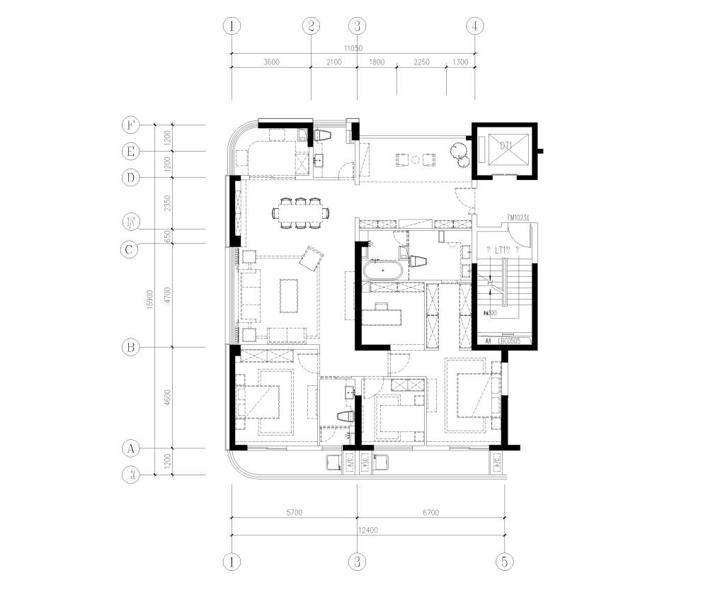
黑色为剪力墙。 管道不能动 其他随意。 来垫意见哈

3房2卫最好- -

123456789_3房2卫最好- -

3房2卫

123456789_3房2卫

5房4卫

123456789_5房4卫
AI文本分析中……
AI色彩命名中……

序赞Ai时刻等待着你的命令!~

与Ai对话形式持续执行相关Ai智能体任务。

您需要登录后才可以回帖 登录 | 注册序赞号

快速回复 返回顶部 返回列表