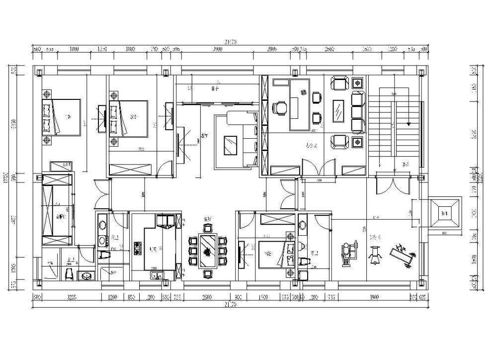
自建房屋的平面深化,研讨。
屋顶自建
1.卧室三间(主卧、次卧、客卧)
2.卫生间三间(主卧一个,公用一个,健身区域一个)
3.厨房一间
4.餐厅一间
5.客厅一间
6.办公室一间
注:办公室要大气,健身空间空气流通量大,客厅亮堂。(希望大家给出更改意见,有更好的方案可以讨论)
自建房屋的平面深化,研讨。_1.jpg
自建房屋的平面深化,研讨。_2.jpg
自建.dwg
325.88 KB,下载次数:14
AI文本分析中……
AI色彩命名中……

序赞Ai时刻等待着你的命令!~

与Ai对话形式持续执行相关Ai智能体任务。

您需要登录后才可以回帖 登录 | 注册序赞号

快速回复 返回顶部 返回列表