求大神帮忙解决方案。
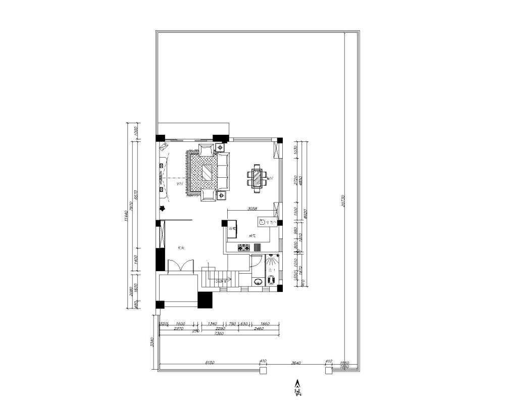
求一楼厅解决方案。因为厅偏一边,厨房想再大些。所以求解决方案。求求各位大神。
求大神帮忙解决方案。_新块2-Model.jpg
新块2.dwg
139.16 KB,下载次数:4
AI文本分析中……
AI色彩命名中……

序赞Ai时刻等待着你的命令!~

与Ai对话形式持续执行相关Ai智能体任务。

您需要登录后才可以回帖 登录 | 注册序赞号

快速回复 返回顶部 返回列表