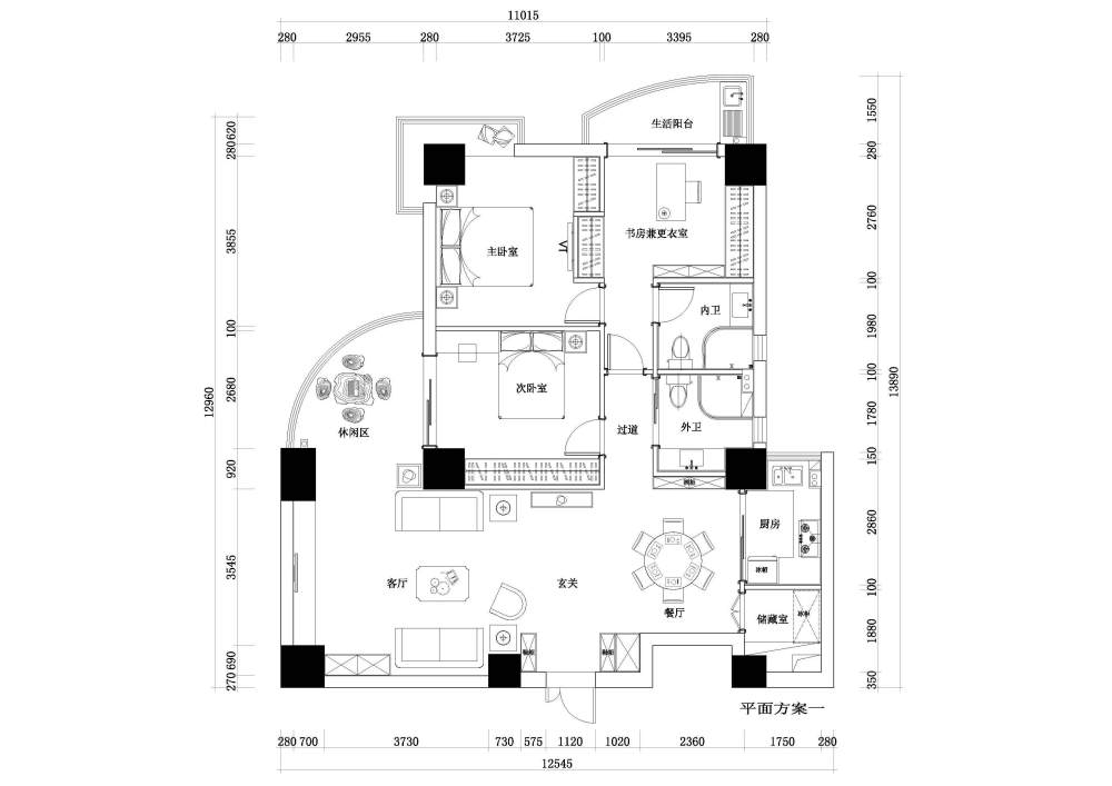
135平方米的户型三种方案各有优缺点302
三口之家。采光比较弱,比较看重采光。要求2个房间,一个书房,餐厅要大点,朋友多的时候来家里吃饭聚会,要酒柜。客厅倒是可以小点。2个卫生间。个人意见最好能不能想办法做个客卧出来。
135平方米的户型三种方案各有优缺点302_原始结构图.jpg
135平方米的户型三种方案各有优缺点302_方案1.jpg
135平方米的户型三种方案各有优缺点302_方案2.jpg
135平方米的户型三种方案各有优缺点302_方案3.jpg
AI文本分析中……
AI色彩命名中……

序赞Ai时刻等待着你的命令!~

与Ai对话形式持续执行相关Ai智能体任务。

暂时没有评论,你回一个呗!~

您需要登录后才可以回帖 登录 | 注册序赞号

快速回复 返回顶部 返回列表